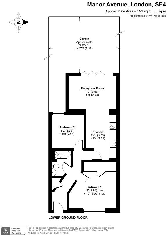
**Standout Features:**
- Two spacious double bedrooms, including a master with a walk-in wardrobe
- Modern open-plan kitchen/lounge with herringbone backsplash
- Bi-fold doors leading to a private west-facing garden
- Located in the desirable Brockley Conservation Area, 0.6 miles from Brockley Station
- Energy Efficiency Rating C, with fast broadband and excellent mobile signal
- Share of Freehold with 996 years remaining on the lease
**Concise Summary:**
Discover the charm of this lovely two-bedroom basement apartment nestled in the prestigious Brockley Conservation Area. Offering 593 sq ft of well-presented living space, this inviting home boasts an extended reception room, a stylish open-plan kitchen with modern finishes, and bi-fold doors that flood the interiors with natural light. Step outside to enjoy your private garden, perfect for relaxation or entertaining.
Ideal for families and young professionals alike, this apartment is within walking distance of Brockley Station, providing easy access to central London. With excellent schools in the vicinity and a vibrant community, this property combines convenience and comfort. While the property features solid brick walls that may require some insulation, its overall condition is ready for you to move in and start creating memories. Don’t miss this unique opportunity in one of SE4's most premium neighborhoods—schedule a viewing today before it’s gone!
3 bedroom apartment for sale in Glensdale Road, London, SE4 — £750,000 • 3 bed • 1 bath • 970 ft²
2 bedroom apartment for sale in Howson Road, Brockley, London, SE4 — £495,000 • 2 bed • 1 bath • 721 ft²
3 bedroom apartment for sale in Whitbread Road, London, SE4 — £525,000 • 3 bed • 1 bath • 721 ft²
3 bedroom apartment for sale in Glensdale Road, Brockley, London, SE4 — £775,000 • 3 bed • 2 bath • 1443 ft²
1 bedroom apartment for sale in Cranfield Road, Brockley, SE4 — £425,000 • 1 bed • 1 bath • 508 ft²
2 bedroom flat for sale in Wickham Road, London, SE4 — £575,000 • 2 bed • 2 bath • 800 ft²


















































































