Move-in-ready modern home with low running costs and green features.
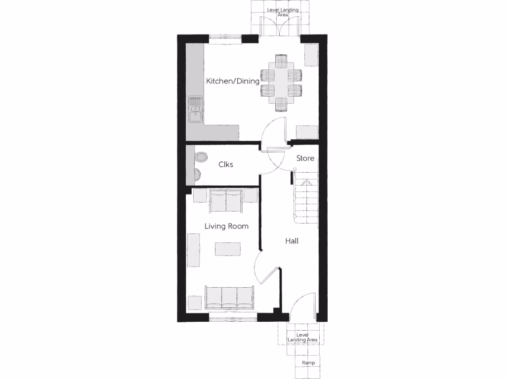
Open-plan kitchen/dining with French doors to large garden
Solar panels and EV charging point included
Principal bedroom with en-suite shower room
Two off-street parking spaces
Freehold new-build with 10-year NHBC Buildmark
Estate management charge £334.65 per year
Council tax band currently unknown
Developer specification limits immediate major alterations
Step into a bright, modern three-bedroom end-of-terrace designed for practical, everyday living. The Harper-Life offers an open-plan kitchen/dining area with French doors to a generous rear garden, a cosy front living room, and an en-suite to the principal bedroom — features that suit first-time buyers and young families alike.
Built new with a 10-year NHBC Buildmark and sold freehold, the home includes sustainable extras: solar panels and a dedicated EV charging point. Two off-street parking spaces and good broadband and mobile coverage add convenience for commuters and home workers.
Be clear about ongoing costs: the estate management charge is £334.65. Council tax banding is not yet set. As a new-build, this house is finished to a developer specification — ideal if you want low-maintenance modern fittings now, but limited scope for immediate structural alteration without developer agreement.
This property sits within the wider Kingsfleet Park development on the edge of Trimley St. Martin, offering local amenities, good transport links and nearby schools. If you want a move-in-ready first home with low running effort, green credentials and future-proof features, this is a strong contender.
3 bedroom semi-detached house for sale in Kingsfleet Park
High Road
Trimley St. Martin
IP11 0RG, IP11 — £369,995 • 3 bed • 1 bath • 1010 ft²
3 bedroom semi-detached house for sale in Kingsfleet Park
High Road
Trimley St. Martin
IP11 0RG, IP11 — £359,995 • 3 bed • 1 bath • 1010 ft²
3 bedroom semi-detached house for sale in Kingsfleet Park
High Road
Trimley St. Martin
IP11 0RG, IP11 — £349,995 • 3 bed • 1 bath • 1010 ft²
3 bedroom semi-detached house for sale in Kingsfleet Park
High Road
Trimley St. Martin
IP11 0RG, IP11 — £364,995 • 3 bed • 1 bath • 1010 ft²
3 bedroom terraced house for sale in Kingsfleet Park
High Road
Trimley St. Martin
IP11 0RG, IP11 — £359,995 • 3 bed • 1 bath • 1010 ft²
3 bedroom semi-detached house for sale in Kingsfleet Park
High Road
Trimley St. Martin
IP11 0RG, IP11 — £369,995 • 3 bed • 1 bath • 1010 ft²


















































