Ideal commuter home with parking and fast London rail links.
Two double bedrooms in a newly renovated ground-floor apartment
Open-plan living with modern kitchen and bathroom, lots of natural light
New boiler installed; double glazing (install date unknown)
Two off-street parking spaces included
Long lease — 159 years remaining (leasehold)
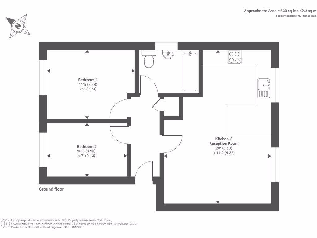
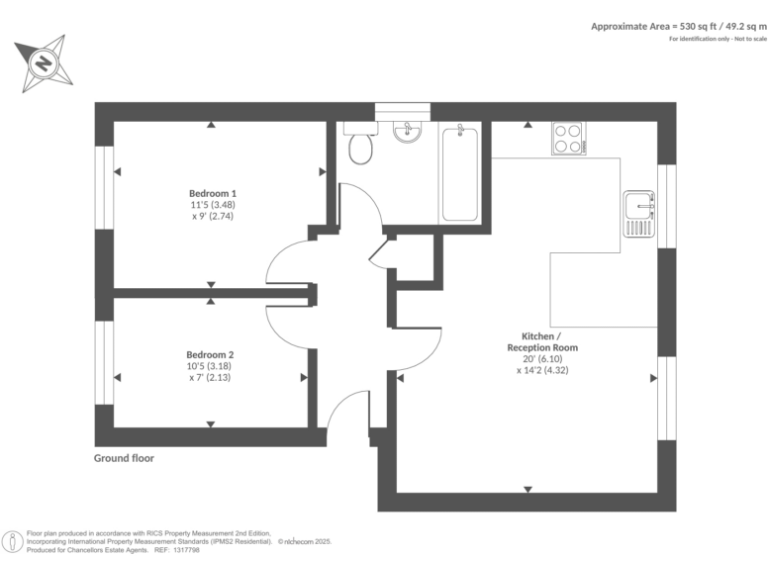
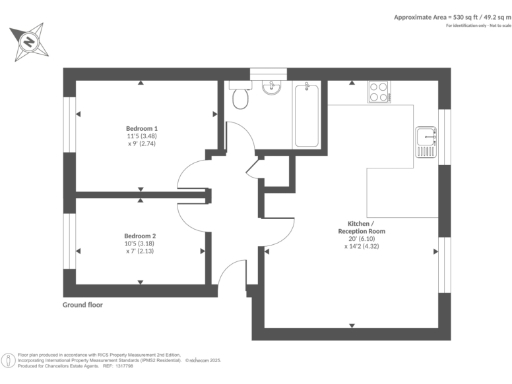
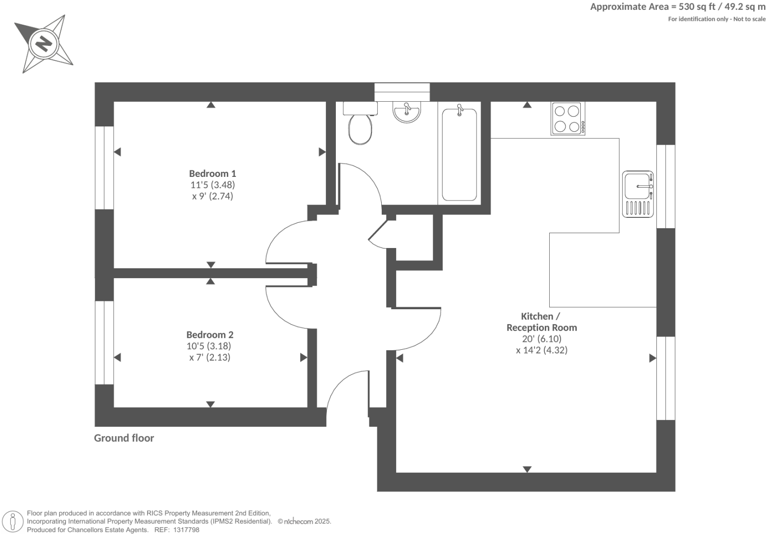
Compact overall size (~530 sq ft) — best for couples or small families
Electric storage heating; main fuel electricity (no communal gas)
Service charge ~£1,400pa and ground rent ~£300pa
This ground-floor two-bedroom apartment offers an efficient, modern layout ideal for commuters and small families. Recently renovated throughout, it features a new boiler, a contemporary kitchen and bathroom, and double glazing. The open-plan living area captures natural light and opens onto communal spaces.
Practical benefits include two off-street parking spaces, fast broadband, excellent mobile signal, and quick train links to London from the nearby station. The long lease (159 years remaining) gives security for buyers who prefer leasehold ownership, with council tax described as affordable.
Notable running costs and local factors to consider: the property is heated by electric storage heaters and main fuel is electricity (no communal gas). Service charge and ground rent are approximately £1,400 and £300 per year respectively. The flat is compact at about 530 sq ft and sits in an area described as deprived with average crime levels — important to weigh against value and transport convenience.
2 bedroom apartment for sale in Wooldridge Close, Feltham, TW14 — £245,000 • 2 bed • 2 bath • 684 ft²
2 bedroom flat for sale in Redford Close, Feltham, TW13 — £250,000 • 2 bed • 1 bath • 635 ft²
2 bedroom flat for sale in Viridian Court, Ashford Road, Feltham, Middlesex, TW13 — £255,000 • 2 bed • 2 bath • 635 ft²
2 bedroom apartment for sale in Chertsey Road, Ashford, TW15 — £285,000 • 2 bed • 2 bath • 595 ft²
2 bedroom apartment for sale in Edith Court, New Road, Bedfont, TW14 — £309,950 • 2 bed • 1 bath • 517 ft²
1 bedroom ground floor flat for sale in Redford Close, LOWER FELTHAM, TW13 — £200,000 • 1 bed • 1 bath • 420 ft²














































































