Well-equipped four-bedroom detached home with large garden, EV charging and solar panels in sought-after WA15 suburb..
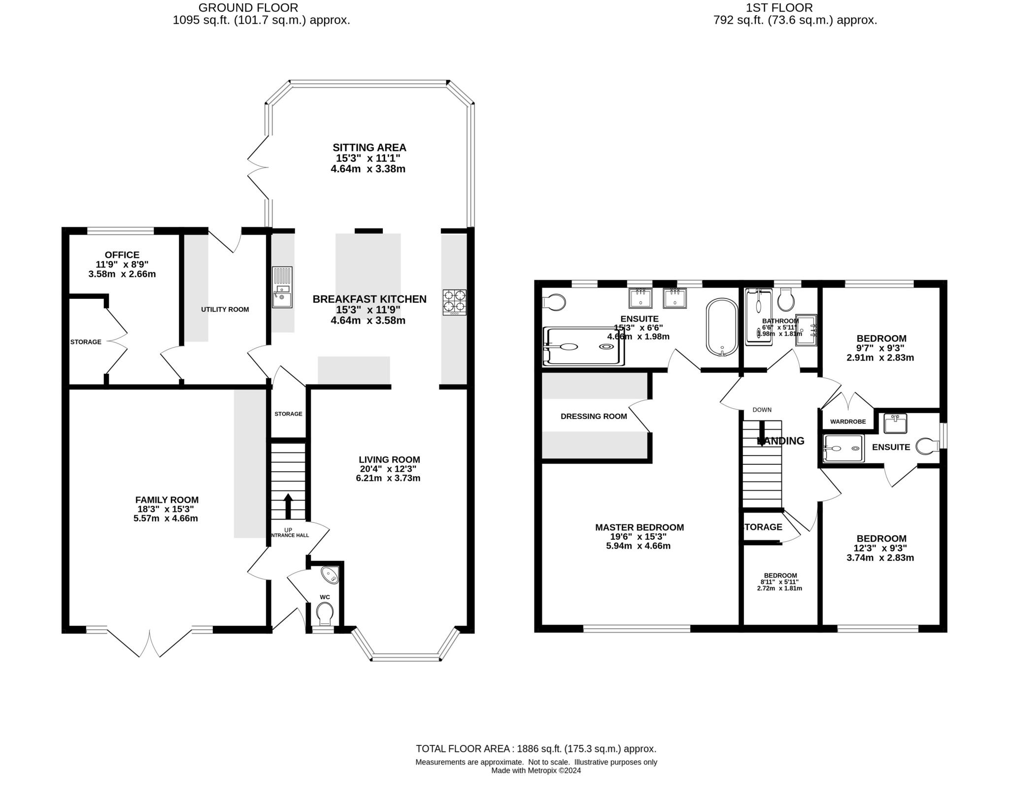
- Detached four-bedroom family home with large rear garden
- Three reception rooms plus home office and utility
- Master bedroom with dressing area and four-piece en-suite
- EV charging point and roof-mounted solar panels installed
- Driveway parking for multiple cars with secure gated access
- Fast broadband and excellent mobile signal; no flood risk
- Council tax band noted as expensive; check running costs
- Mixed local school performance; verify catchment placements
Set on a large plot in WA15, this four-bedroom detached house is arranged over two floors and designed for family life. The ground floor offers three reception rooms — a formal lounge, a family room with bespoke media wall, and a living/dining area opening onto the rear garden — plus a breakfast kitchen, utility and home office. Practical features include driveway parking for several cars, an EV charging point and solar panels that lower running costs.
Upstairs the layout centres on a generous master suite with dressing area and a substantial four-piece en-suite, a second bedroom with en-suite shower, two further bedrooms and a family bathroom with underfloor heating. The large, well-maintained rear garden and multiple paved and decked areas create flexible outdoor space for children, pets and entertaining.
The property sits in a highly sought-after suburb of Timperley with fast broadband and excellent mobile signal. Local schooling is mixed — several primary schools rated Good and a Good secondary nearby, but some local schools have lower Ofsted ratings, so check catchment and admissions. There is no flood risk recorded for the site.
Known negatives are factual and important: council tax is described as expensive, and the local area profile includes terraces and flats nearby which may affect immediate street character. Overall this is a spacious, well-equipped family home in a comfortable suburban location with good energy and EV provisions but with modest local school variability and higher running costs to factor in.
5 bedroom detached house for sale in Mosley Road, Timperley, Altrincham, WA15 — £840,000 • 5 bed • 2 bath • 1784 ft²
3 bedroom terraced house for sale in Bloomsbury Lane, Timperley, WA15 — £395,000 • 3 bed • 1 bath • 1022 ft²
4 bedroom detached house for sale in Downham Chase, Timperley, Altrincham, Greater Manchester, WA15 — £725,000 • 4 bed • 2 bath • 1416 ft²
4 bedroom detached house for sale in Stockport Road, Timperley, Altrincham, WA15 — £725,000 • 4 bed • 2 bath • 1690 ft²
4 bedroom detached house for sale in Spey Close, Altrincham, WA14 — £615,000 • 4 bed • 2 bath • 1461 ft²
5 bedroom detached house for sale in Ridgeway Road, Timperley, WA15 — £750,000 • 5 bed • 1 bath • 2107 ft²






























































































































































