TS23 3QD - 3 bedroom semidetached house for sale in Tunstall Avenue, B…

View on Property Piper

3 bedroom semi-detached house for sale in Tunstall Avenue, Billingham, TS23

Summary - 75 Tunstall Avenue TS23 3QD

3 bed 2 bath Semi-Detached

**Standout Features:**
- Extended three-bedroom semi-detached property
- Chain-free sale for swift transactions
- 12 owned solar panels with three battery storage units
- Infrared heating in select rooms alongside gas central heating
- Spacious living areas with large bay windows and modern fireplace
- Private, well-maintained garden with paved walkway and storage shed
- Convenient off-road parking and garage

**Summary:**
Discover this remarkable chain-free three-bedroom semi-detached home, ideal for families seeking comfort and practicality. The property features a spacious layout, boasting an inviting modern living room warmed by natural light from large bay windows and anchored by a stylish fireplace. The open-plan dining area seamlessly flows into the well-equipped kitchen, perfect for entertaining or family gatherings. Additional highlights include three generously-sized bedrooms with built-in wardrobes and a serene garden space—great for outdoor relaxation.

Benefit from energy-efficient features such as 12 owned solar panels and battery storage, alongside modern infrared heating and gas central heating. With a sizable garage and off-road parking, this home offers both convenience and elegance. While well-maintained, prospective buyers are encouraged to conduct independent surveys to verify property details.

Moreover, families will appreciate the proximity to top-rated schools like Oakdene Primary Academy. This property combines comfort, modern amenities, and potential for future renovations, making it an exceptional opportunity you won't want to miss. Secure your viewing today—properties like this don't stay on the market long!

Property Details

Brochure Descriptions

Image Descriptions

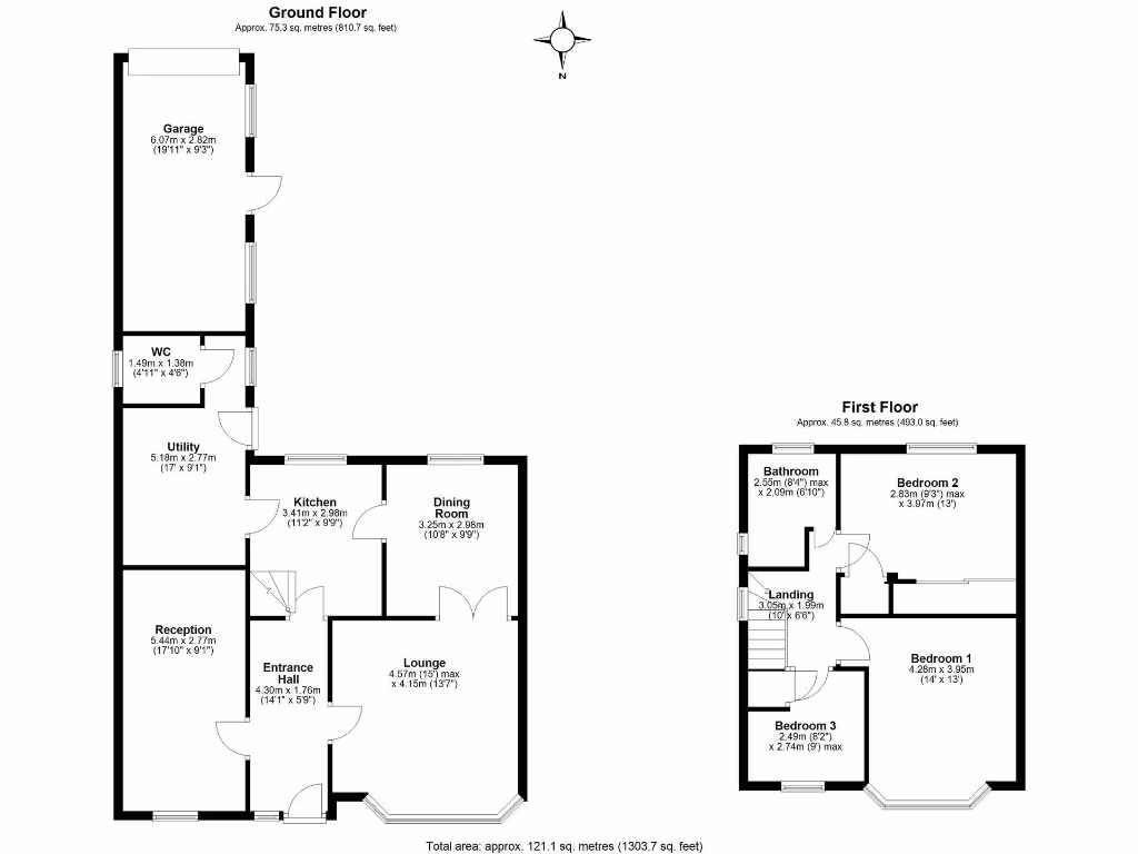
Floorplan Description

Rooms

Textual Property Features

Detected Visual Features

EPC Details

Nearby Schools

Nearest Bars And Restaurants

,,,,}

Nearest General Shops

,,}

Nearest Grocery shops

,,}

Nearest Supermarkets

,,}

Nearest Religious buildings

,,}

Nearest Medical buildings

,,,}

Nearest Leisure Facilities

,,,,}

Nearest Tourist attractions

,,}

Nearest Train stations

,,,,}

Nearest Bus stations and stops

,,,,}

Nearest Hotels

,,}

Tags

Local Market Stats

Similar Properties

Meta

High Res Images

Compatible Images

Low res Images

Thumbnails

Raw Images

High Res Floorplan Images

Compatible Floorplan Images

Low res Floorplan Images

FloorplanImages Thumbnail

Raw Floorplan Images