Character family home with large garden and countryside outlook.
Four-bedroom detached cottage with extensive private gardens
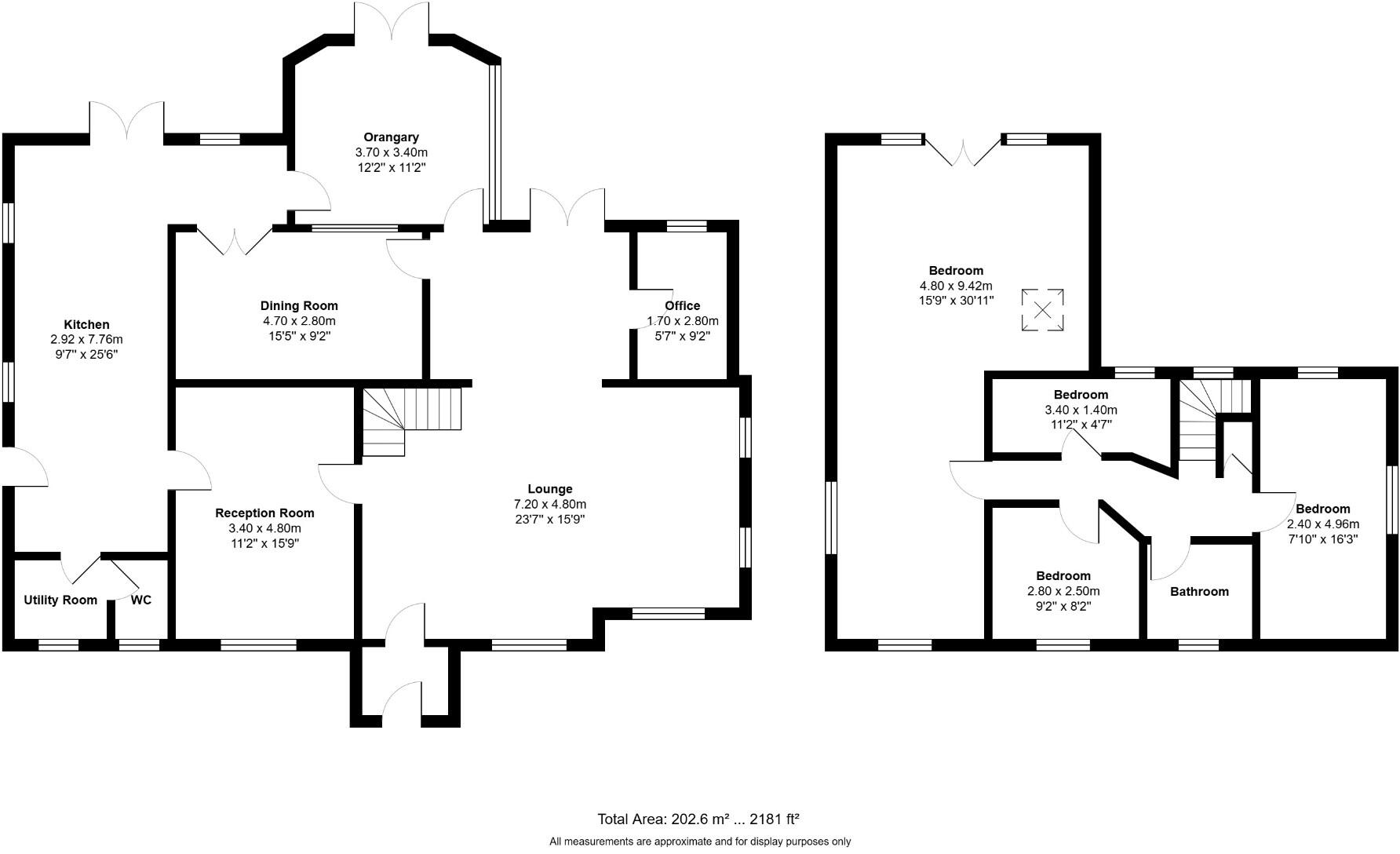
Honeysuckle Cottage is a unique four-bedroom detached family home occupying a very large plot on the edge of Euxton. The house mixes traditional cottage character — exposed beams, feature fireplace and dormer windows — with modern practicalities such as a fitted kitchen, utility room and separate office. Large gardens extend to open countryside, offering privacy and plenty of space for children and outdoor life.
Ground floor living is flexible with a spacious lounge, a second reception opening through French doors to the garden, an orangery and a formal dining room. The principal suite spans the top floor, benefits from multiple skylights and a Juliet balcony with far-reaching views. Practical features include off-street driveway parking, fast broadband and a downstairs WC.
There are some important points to note: parts of the roof and the front elevation show signs of neglect and will require repair, and several rooms have lower ceiling heights consistent with an older cottage. The house has a single family bathroom for four bedrooms, so buyers may wish to reconfigure or add facilities. Overall, the property offers strong family potential and scope for sympathetic updating to enhance value while retaining character.
3 bedroom detached house for sale in Wigan Road, Euxton, Chorley, Lancashire, PR7 — £450,000 • 3 bed • 1 bath • 1039 ft²
4 bedroom detached house for sale in Euxton Hall Gardens, Euxton, PR7 6PB, PR7 — £575,000 • 4 bed • 3 bath • 1141 ft²
3 bedroom semi-detached house for sale in Daub Lane, Bispham, Ormskirk, L40 — £585,000 • 3 bed • 1 bath • 1753 ft²
4 bedroom end of terrace house for sale in Washington Lane, Euxton, PR7 6DQ, PR7 — £495,000 • 4 bed • 2 bath • 1496 ft²
5 bedroom detached house for sale in Fieldside Avenue, Euxton, PR7 6JF, PR7 — £600,000 • 5 bed • 3 bath • 3482 ft²
4 bedroom detached house for sale in Gallows Lane, Ribchester, Preston, Lancashire, PR3 — £575,000 • 4 bed • 2 bath • 1797 ft²


















































































































