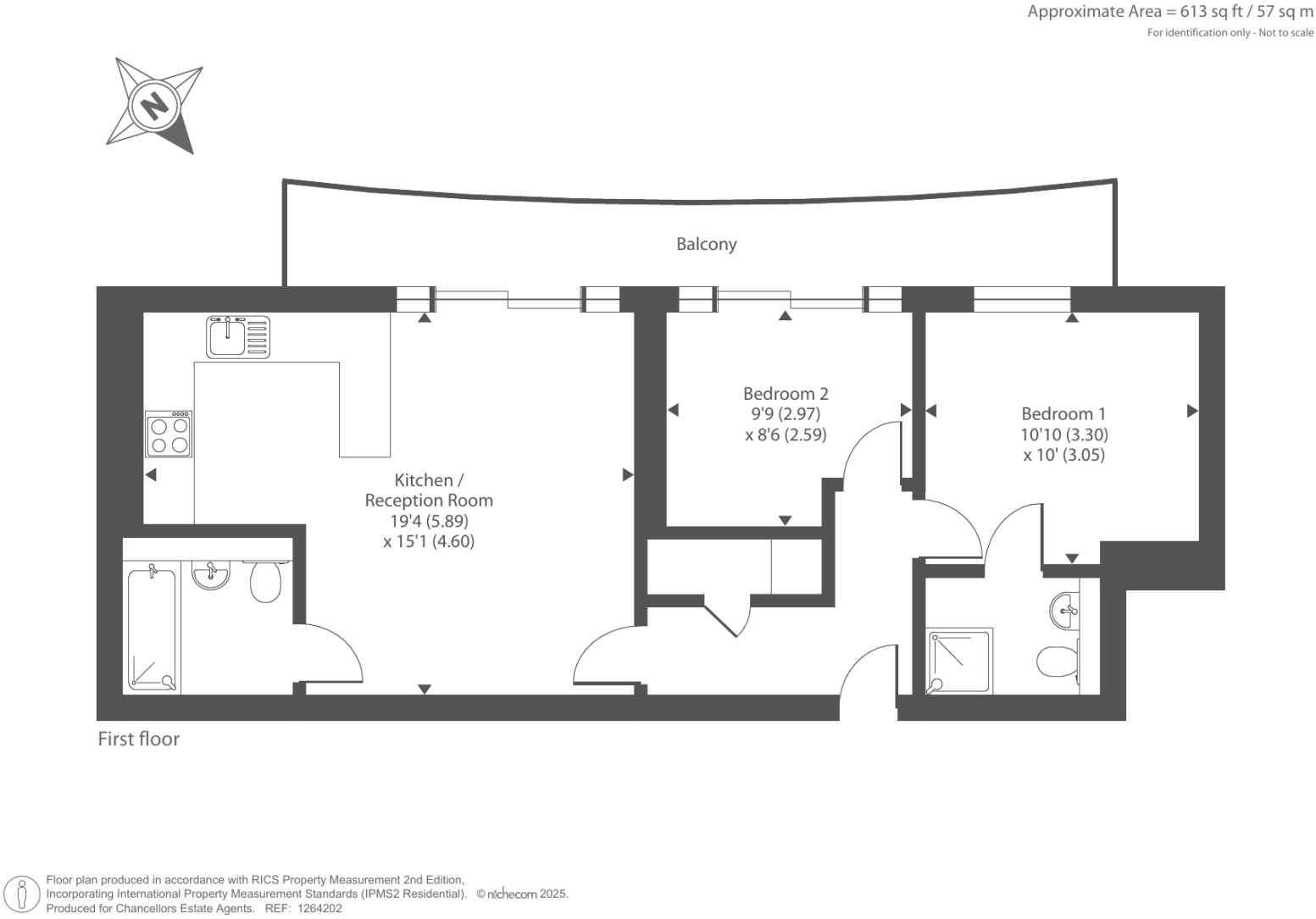
**Standout Features:**
- Leasehold with 125 years from 2003 (75 years remaining, significant lender concern)
- Two bedrooms and two bathrooms (main + ensuite)
- Open-plan living/kitchen/dining layout
- Allocated parking space
- No onward chain
- Convenient location near Reading West Station and local amenities
This contemporary two-bedroom flat in West Reading is a promising opportunity for both first-time buyers and investors. The apartment boasts an open-plan living area that's bathed in natural light, seamlessly integrating a modern kitchen with integrated appliances. Enjoy the comfort of two bathrooms, including an ensuite, ideal for guests or family. With an allocated parking space and communal grounds, this property offers a sense of community and accessibility.
While the flat benefits from a prime location close to various amenities along the bustling Oxford Road and excellent transport links, there is a critical concern regarding the remainder of the lease; only 75 years left may pose financing challenges with most lenders. However, the property presents a great foundation for those willing to invest in future renovations or enhancements. With no onward chain, this gem could be the perfect fit for buyers looking for convenience and potential. Don’t miss out on this opportunity in a vibrant urban setting!
2 bedroom flat for sale in West Reading, Berkshire, RG30 — £210,000 • 2 bed • 1 bath • 592 ft²
2 bedroom flat for sale in West Reading, Berkshire, RG30 — £230,000 • 2 bed • 2 bath • 728 ft²
2 bedroom flat for sale in Convenient for Town Centre, West Reading, RG30 — £220,000 • 2 bed • 1 bath • 592 ft²
2 bedroom apartment for sale in Branagh Court, Reading, Berkshire, RG30 — £190,000 • 2 bed • 1 bath • 464 ft²
2 bedroom flat for sale in Central Reading, Berkshire, RG1 — £240,000 • 2 bed • 1 bath • 667 ft²
2 bedroom apartment for sale in Winslet Place, Oxford Road, Reading, Berkshire, RG30 — £180,000 • 2 bed • 2 bath • 614 ft²














































































