End-of-terrace with private garden and en-suite master bedroom.
Golf course outlook to rear
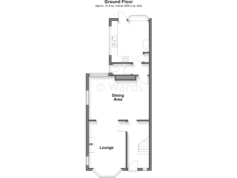
Bright, characterful three-bedroom end-of-terrace just off the Littlestone seafront with golf course views. The house has separate lounge and dining areas, a generous master bedroom with en-suite, and a private walled garden — practical layout for family life and seaside weekends. Recent renovations have refreshed the interior while retaining period Tudor Revival charm.
This home is well located for the seafront at the end of the road and a short drive to New Romney for shops and services. Local schools rated Good and nearby leisure amenities suit active families. The property is freehold and offers around 1,303 sq ft of living space across clearly defined rooms.
Buyers should note a few material facts: images labelled “Virtual Stager” show styling only; some photos indicate potential damp and parts of the house may need further updating. The building dates from the early 20th century and has cavity walls with assumed no historic insulation. Council tax is above average. Verify details on fixtures, services and any works required before purchase.
For a family seeking a seaside-focused home with character, flexible living spaces and a scenic outlook over the golf course, this property offers strong potential. It will particularly suit buyers wanting a ready-to-live-in base that can be further personalised, or those prepared to address minor maintenance to secure long-term comfort and value.
3 bedroom terraced house for sale in Blenheim Road, Littlestone, Kent, TN28 — £270,000 • 3 bed • 1 bath • 615 ft²
3 bedroom end of terrace house for sale in Blenheim Road, Littlestone, Kent, TN28 — £260,000 • 3 bed • 1 bath • 808 ft²
4 bedroom detached house for sale in St. Nicholas Road, Littlestone, New Romney, Kent, TN28 — £500,000 • 4 bed • 1 bath • 1378 ft²
4 bedroom detached house for sale in Madeira Road, Littlestone, New Romney, Kent, TN28 — £520,000 • 4 bed • 2 bath
4 bedroom end of terrace house for sale in 2 Pebble Close, Littlestone, New Romney, Kent TN28 8FD, TN28 — £400,000 • 4 bed • 2 bath • 1567 ft²
4 bedroom detached house for sale in St. Andrew's Road, Littlestone, New Romney, Kent, TN28 — £750,000 • 4 bed • 2 bath • 2011 ft²














































































