Characterful Grade II cottage near the river with decked courtyard and ferry access.
Grade II listed cottage — alterations and repairs restricted
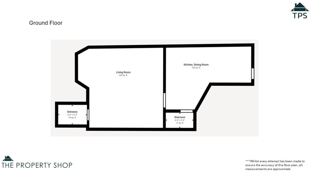
Set in the tranquil riverside hamlet of Bodinnick, this Grade II listed three-bedroom cottage combines genuine period character with a peaceful location a short walk from the river and ferry to Fowey. The compact living room, country kitchen and small courtyard provide a cosy, low-maintenance footprint suited to someone seeking a slower pace and strong local atmosphere.
The property offers two double bedrooms on the first floor and an attic room currently used as a third bedroom; note the attic has restricted headroom and may not meet modern room standards. There is a single family bathroom. The house is detached with generous overall size and a raised decked seating area reached via courtyard steps, plus access onto an ancient footpath.
Practical considerations: the home is Grade II listed, which will restrict alterations and can complicate repairs. Heating is by oil-fired boiler and radiators; walls are cavity with no added insulation (assumed). Broadband speeds are slow despite excellent mobile signal. These factors suit buyers prepared to accept historic constraints or to invest in sensitive upgrades.
This cottage will appeal to downsizers or buyers wanting a character home close to the water and village amenities. It offers immediate comfort and strong location value, but buyers should budget for listed-property upkeep and check suitability of the attic bedroom for their needs.
1 bedroom cottage for sale in Bodinnick, Fowey, PL23 — £350,000 • 1 bed • 1 bath • 668 ft²
3 bedroom semi-detached house for sale in St. Austell Road, St Blazey Gate, Par PL24 — £325,000 • 3 bed • 1 bath • 1092 ft²
3 bedroom house for sale in Union Place, Fowey, PL23 — £450,000 • 3 bed • 2 bath • 977 ft²
3 bedroom character property for sale in Fore Street, Polruan, Fowey, PL23 — £395,000 • 3 bed • 1 bath • 1246 ft²
3 bedroom terraced house for sale in Passage Street, Fowey, Cornwall, PL23 — £680,000 • 3 bed • 2 bath • 1096 ft²
3 bedroom cottage for sale in Lanteglos Highway, Fowey, PL23 — £300,000 • 3 bed • 1 bath • 737 ft²


















































