Spacious country home with paddock and wide Clyde views.
Victorian sandstone detached villa with original period features preserved
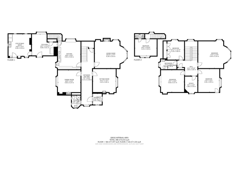
Kirkland House is a substantial six-bedroom Victorian sandstone villa occupying an elevated, walled site with panoramic countryside views to the Firth of Clyde and Arran. The house extends to around 3,531 sq ft across two main floors and includes original period features — high ceilings, bay windows, decorative mouldings and fireplaces — alongside practical updates such as double glazing and oil-fired central heating. The property sits within formal gardens and benefits from approximately three acres of adjoining paddock, accessed from the west boundary, making it well suited to buyers with equestrian interests or those seeking generous outdoor space.
Internally the layout is traditional and spacious, with a broad reception hall, a formal living room and separate sitting room, a large dining room, and a well-equipped kitchen with a four-oven Aga and scullery leading to a utility/mud room. There are six principal bedrooms including a kitchen-accessed sixth bedroom (originally servants’ accommodation) and two bathrooms in total. Loft storage is extensive and driveway parking is provided behind a gated entrance.
Practical considerations are straightforward: broadband speeds are very slow in this location despite excellent mobile signal; council tax is high; and the property lies in a remoter, agricultural community with limited local amenities, although West Kilbride — with a mainline train to Glasgow and Largs — is under two miles away. There is no flood risk recorded. Buyers should note the house’s age and scale mean ongoing maintenance and running costs will be above average, though the accommodation is presented in good order and retains strong period character.
For families seeking space, an equestrian plot and scenic views, Kirkland House offers rare scale and setting. For purchasers prioritising fast broadband, town-centre convenience or very low running costs, the remoter location and slow internet should be weighed when considering a viewing.
5 bedroom detached house for sale in Kirkfauld, 5 Kirkton Road, Kilmaurs, East Ayrshire, KA3 — £625,000 • 5 bed • 3 bath • 2185 ft²
4 bedroom house for sale in 1 Morland House, Long Hill, Skelmorlie, PA17 5DS, PA17 — £475,000 • 4 bed • 3 bath • 2691 ft²
5 bedroom detached house for sale in Portencross Road, West Kilbride, KA23 — £400,000 • 5 bed • 2 bath
3 bedroom detached house for sale in Portencross Road, West Kilbride, KA23 — £400,000 • 3 bed • 2 bath • 1736 ft²
5 bedroom end of terrace house for sale in Carlung House, Carlung Estate, West Kilbride, North Ayrshire, KA23 — £465,000 • 5 bed • 2 bath • 2027 ft²
3 bedroom detached house for sale in School Wynd, Kilbirnie, North Ayrshire, KA25 — £165,000 • 3 bed • 2 bath • 1675 ft²














































































































