Elevated coastal home with panoramic sea views, large gardens and scope to modernise..
Elevated position with far-reaching sea and beach views
Approximately 0.25 acre gardens split into sheltered and elevated areas
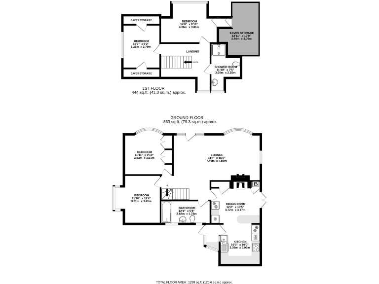
Four double bedrooms and two bathrooms across 1,298 sq ft
Detached garage and off-road driveway parking at road level
Requires modernisation; EPC F and scope for energy upgrades
Solid brick walls (likely uninsulated) and LPG boiler heating
Very slow broadband availability; average mobile signal
Council Tax Band B (relatively low)
Sunnyside is a detached coastal dormer bungalow set in an elevated position above Mawgan Porth, offering far-reaching sea and beach views from both floors. The house sits within approximately 0.25 acres of gardens and grounds, arranged over sheltered lower courtyards and higher, panoramic lawns — ideal for outdoor living and those who value privacy. The detached garage and driveway provide convenient road-level parking.
Internally the layout provides four double bedrooms and two bathrooms across about 1,298 sq ft, with a character-filled lounge, kitchen diner and useful porch/utility. The upstairs bedrooms have sloped ceilings and coastal outlooks; living spaces capture abundant light and the property’s outlook is the standout feature. Council Tax Band B and relatively low running-area tax are additional practical positives.
The house requires modernisation throughout: the property has solid brick walls (assumed uninsulated), an EPC rating of F, LPG boiler heating and double glazing fitted post-2002. Broadband availability is very slow locally. These facts make Sunnyside best suited to buyers prepared to renovate to improve energy performance, update services and personalise the interior.
For buyers seeking a comfortable permanent home, a holiday base close to the beach, or a renovation project with excellent seaside potential, Sunnyside offers rare elevated views and a generous plot. The location on the Trenance side of Mawgan Porth places beaches, coastal paths and local amenities within easy reach, while Newquay Airport and the A30 remain accessible for wider travel.
 4 bedroom detached house for sale in Mawgan Porth, Newquay, Cornwall, TR8 — £1,150,000 • 4 bed • 2 bath • 2500 ft²
 4 bedroom detached house for sale in Mawgan Porth, Newquay, Cornwall, TR8 — £1,150,000 • 4 bed • 2 bath • 2500 ft² 4 bedroom detached house for sale in Atlantic View Bungalow, Mawgan Porth, TR8 — £1,100,000 • 4 bed • 2 bath • 1688 ft²
 4 bedroom detached house for sale in Atlantic View Bungalow, Mawgan Porth, TR8 — £1,100,000 • 4 bed • 2 bath • 1688 ft² 3 bedroom bungalow for sale in Venton Vean, Mawgan Porth, TR8 — £450,000 • 3 bed • 1 bath • 820 ft²
 3 bedroom bungalow for sale in Venton Vean, Mawgan Porth, TR8 — £450,000 • 3 bed • 1 bath • 820 ft² House for sale in Trehelles, Mawgan Porth, TR8 — £650,000 • 1 bed • 1 bath • 1003 ft²
 House for sale in Trehelles, Mawgan Porth, TR8 — £650,000 • 1 bed • 1 bath • 1003 ft² 4 bedroom detached house for sale in Trenance, Mawgan Porth, Newquay, Cornwall, TR8 — £1,200,000 • 4 bed • 4 bath • 3581 ft²
 4 bedroom detached house for sale in Trenance, Mawgan Porth, Newquay, Cornwall, TR8 — £1,200,000 • 4 bed • 4 bath • 3581 ft² 4 bedroom house for sale in The Palm House, Mawgan Porth, TR8 — £1,875,000 • 4 bed • 4 bath • 2876 ft²
 4 bedroom house for sale in The Palm House, Mawgan Porth, TR8 — £1,875,000 • 4 bed • 4 bath • 2876 ft²






























































