Compact town cottage with period charm and private courtyard garden, ideal first home.
Chain free two-bedroom period cottage with character features
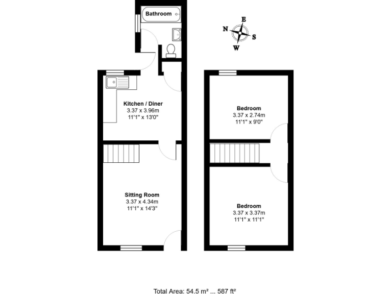
A compact, characterful mid‑terrace cottage on Needham Market’s historic High Street, offered chain free and ready for immediate occupation. Period features are prominent throughout: exposed timbers, brick chimney breasts, sash windows with secondary glazing and a cosy wood‑burning stove that give the sitting room authentic cottage charm.
The layout is practical for a first home or lock‑up‑and‑leave town base. The ground floor provides a sitting room, a kitchen/dining room with integrated hob and oven, and a compact family bathroom. Two first‑floor bedrooms sit beneath the property's traditional roof timbers; rooms are modest in size, reflecting the home’s historic footprint (approximately 54 sq m / 587 sq ft).
Outside, a sheltered courtyard garden and a brick-and-flint boundary offer an attractive private spot for plants and a small seating area, with pedestrian access to King William Street. The property is freehold, has gas central heating, fast broadband, excellent mobile signal and low local crime — useful practical benefits for everyday living.
Buyers should note the cottage’s small overall size and very small plot; the accommodation will suit those seeking period character rather than open‑plan modern living. Located in a conservation area, any alterations may be restricted. The home is currently used as a holiday let and may benefit from updating to suit a permanent owner or to maximise long‑term resale value.
2 bedroom terraced house for sale in Needham Market, Suffolk, IP6 — £215,000 • 2 bed • 1 bath • 587 ft²
2 bedroom town house for sale in Needham Market, Suffolk, IP6 — £345,000 • 2 bed • 1 bath • 1270 ft²
2 bedroom end of terrace house for sale in Stowmarket Road, Needham Market, Ipswich, IP6 — £180,000 • 2 bed • 2 bath • 593 ft²
2 bedroom terraced house for sale in Freehold Road, Needham Market, Ipswich, IP6 — £225,000 • 2 bed • 1 bath • 440 ft²
4 bedroom house for sale in High Street, Needham Market, Ipswich, IP6 — £477,000 • 4 bed • 1 bath • 2225 ft²
2 bedroom end of terrace house for sale in Gipsy Lane, Needham Market, IP6 — £230,000 • 2 bed • 1 bath • 980 ft²


















































