Efficient village living with parking and excellent energy ratings.
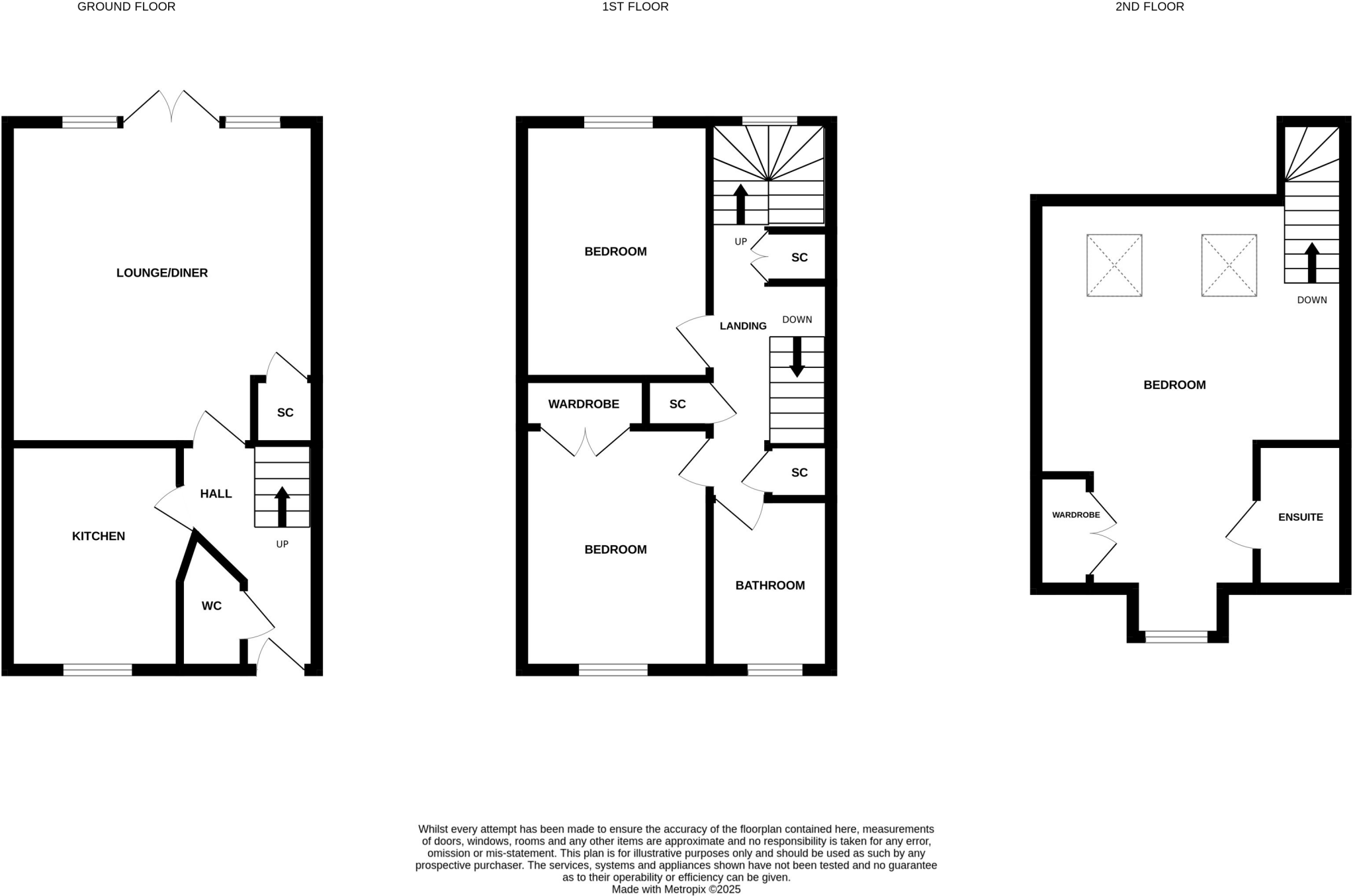
- Three double bedrooms with 19ft main bedroom and ensuite
- Open lounge/diner with French doors to garden
- Newly renovated; modern kitchen with integrated appliances
- Driveway parking for two cars; gated access to garden
- Small overall footprint (~761 sq ft) and modest garden
- EPC current B (84) with potential A (97) — energy efficient
- Completion scheduled for Spring 2026 — confirm timetable
- Freehold; low local crime and strong village amenities
This well-presented three-storey semi-detached home in popular Langford offers efficient family living across three floors. The layout includes a modern kitchen, open lounge/diner with French doors to the garden, downstairs cloakroom and generous storage on the second floor. The main bedroom is a standout at over 19ft with fitted wardrobes and an ensuite, making it genuinely practical for a couple or young family.
The house is newly renovated and shows good attention to finish and energy performance (EPC current B 84, potential A 97). Practical benefits include a driveway for two cars, gas central heating to radiators and useful built-in cupboards. The rear garden is lawned with a patio and shed base, while the front is low-maintenance with landscaped shingle borders.
Buyers should note the overall internal footprint is compact (around 761 sq ft) and the plot/garden is modest — outdoor space suits low-maintenance family life rather than extensive gardening. Completion is stated as spring 2026, so timing and handover should be confirmed. Freehold tenure and a low-crime, very affluent village location add long-term reassurance.
3 bedroom semi-detached house for sale in High Street, Langford, Biggleswade, SG18 — £400,000 • 3 bed • 2 bath • 828 ft²
3 bedroom semi-detached house for sale in Campion Edge, Langford, Biggleswade, SG18 — £400,000 • 3 bed • 2 bath • 1119 ft²
3 bedroom semi-detached house for sale in East Road, Langford, Biggleswade, SG18 9QF, SG18 — £450,000 • 3 bed • 1 bath • 1576 ft²
4 bedroom detached house for sale in Garfield, Langford, SG18 — £550,000 • 4 bed • 2 bath • 1520 ft²
5 bedroom detached house for sale in Mayflower Lane, Langford, Biggleswade, SG18 9FR, SG18 — £825,000 • 5 bed • 3 bath • 2326 ft²
3 bedroom semi-detached house for sale in Manor Close, Langford, SG18 — £350,000 • 3 bed • 1 bath • 887 ft²






























































