UB7 7GB - 2 bedroom apartment for sale in Fitzroy Court, West Drayton…

View on Property Piper

2 bedroom apartment for sale in Fitzroy Court, West Drayton, UB7

Summary - Flat 2 Fitzroy Court, 2, Garnet Place, WEST DRAYTON UB7 7GB

2 bed 2 bath Apartment

**Standout Features:**
- Two bedrooms with two bathrooms (ensuite included)
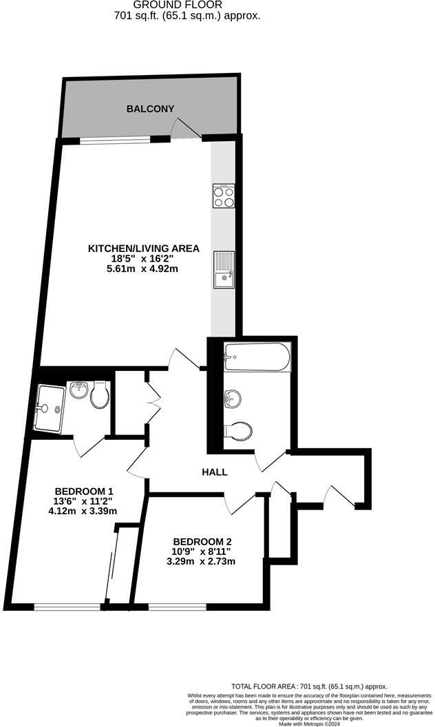
- Modern open-plan living space with access to a balcony
- Rooftop terrace for communal relaxation
- Undercroft parking for convenience
- Long lease with 994 years remaining
- B-rated EPC for energy efficiency
- Minutes away from the Elizabeth Line for easy commuting

**Potential Concerns:**
- Average room sizes
- Moderate service charge of £2,500 per annum
- Ground rent of £350 per annum

---

This stylish and contemporary apartment is nestled in the vibrant heart of West Drayton, making it perfect for young families and investors alike. Featuring two comfortable bedrooms, including a main bedroom with an ensuite bathroom, this space flows effortlessly from the modern kitchen to a bright living area, leading to a private balcony—ideal for urban views and relaxation. Additional perks include access to a serene rooftop terrace and convenient undercroft parking.

With a long lease of nearly 1,000 years and an impressive EPC rating of B, this property is not only an efficient choice but also offers solid investment potential. Located just minutes from the Elizabeth Line, residents will enjoy swift access to central London and beyond, while a host of local amenities—including quality schools—are right at your doorstep. Don’t miss the opportunity to own this delightful apartment in a prime, accessible location!

Property Details

Brochure Descriptions

Image Descriptions

Floorplan Description

Rooms

Textual Property Features

Detected Visual Features

EPC Details

Nearby Schools

Nearest Bars And Restaurants

,,,,}

Nearest General Shops

,,}

Nearest Grocery shops

,,}

Nearest Supermarkets

,,}

Nearest Religious buildings

,,}

Nearest Medical buildings

,,,}

Nearest Airports

}

Nearest Leisure Facilities

,,,,}

Nearest Tourist attractions

,,}

Nearest Train stations

,,,,}

Nearest Bus stations and stops

,,,,}

Nearest Hotels

,,}

Tags

Local Market Stats

AirBnB Data

Similar Properties

Meta

High Res Images

Compatible Images

Low res Images

Thumbnails

Raw Images

High Res Floorplan Images

Compatible Floorplan Images

Low res Floorplan Images

FloorplanImages Thumbnail

Raw Floorplan Images