Stylish three-bed close to seafront and local amenities.
Victorian mid-terrace with bay window and period features
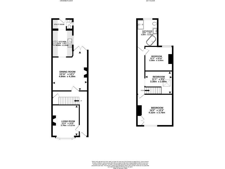
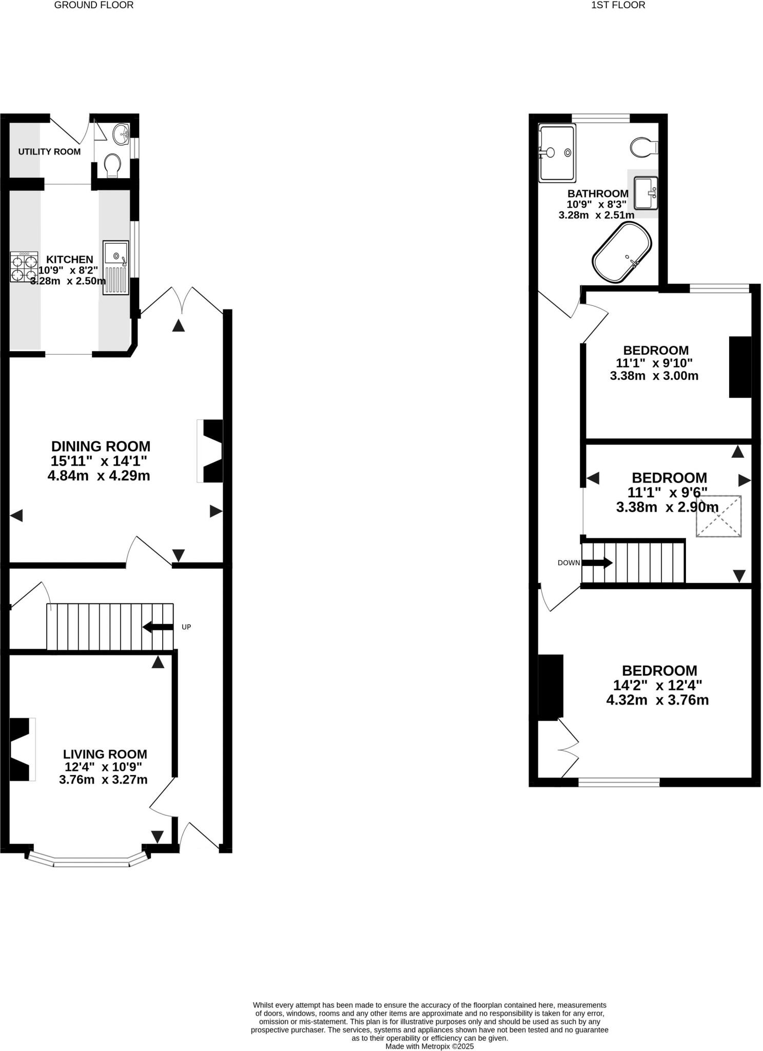
Set on desirable Hellyer Road, this Victorian mid-terrace blends original character with contemporary updates. The bay-fronted living room and marble-surround fireplace create a warm, attractive reception space, while a large rear dining room opens through double doors to a low-maintenance garden of about 29ft — a useful outdoor extension for dining and play.
The kitchen is modern and accompanied by a separate utility and ground-floor WC, helping with day-to-day family life. Upstairs are three double bedrooms and a four-piece bathroom with both bath and walk-in shower, making the layout practical for first-time buyers or a growing household. The property extends to about 929 sq ft and benefits from double glazing and mains gas central heating.
Practical considerations: the terraced plot is small and the original cavity walls are assumed to lack insulation, which could affect running costs and may benefit from improvement. There is just one main bathroom and no off-street parking shown. The property is freehold, in a low-crime area and sits around a 12-minute walk to the seafront and local amenities.
This is a straightforward purchase with no onward chain, offering a ready-to-live-in home that still allows scope for targeted upgrades (insulation, energy improvements or cosmetic tweaks) to add value and reduce future costs. Internal viewing recommended to appreciate the layout and period detail in person.
3 bedroom terraced house for sale in Winter Road, Southsea, PO4 — £335,000 • 3 bed • 1 bath • 782 ft²
3 bedroom terraced house for sale in Haslemere Road, Southsea, PO4 — £350,000 • 3 bed • 1 bath • 852 ft²
3 bedroom terraced house for sale in Catisfield Road, Southsea, PO4 — £274,000 • 3 bed • 1 bath • 754 ft²
3 bedroom terraced house for sale in Suffolk Road, Southsea, PO4 — £270,000 • 3 bed • 1 bath • 605 ft²
3 bedroom terraced house for sale in Manners Road, Southsea, PO4 — £335,000 • 3 bed • 1 bath • 996 ft²
3 bedroom terraced house for sale in Carisbrooke Road, Southsea, PO4 — £355,000 • 3 bed • 1 bath • 881 ft²


































































































































