Turn-key two-bedroom home with south garden and NHBC warranty.
Chain-free modern two-bedroom semi-detached home
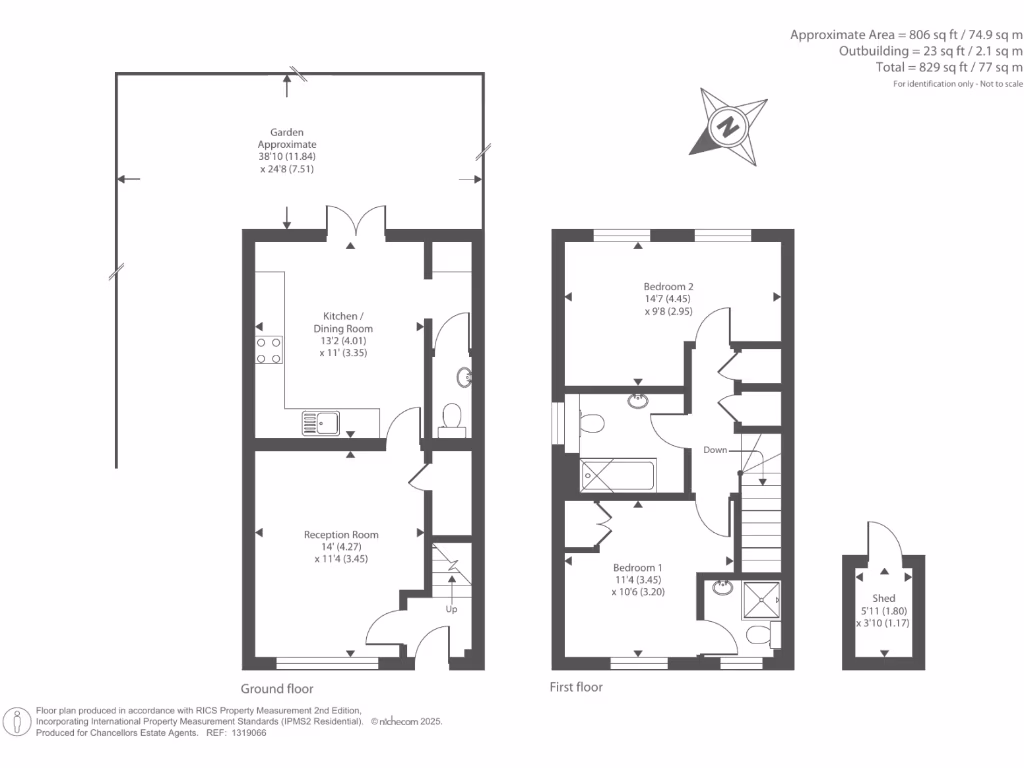
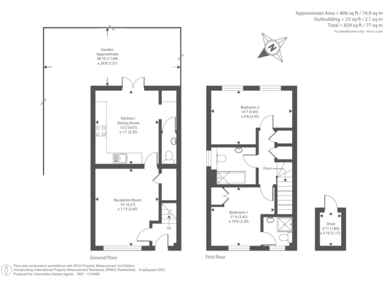
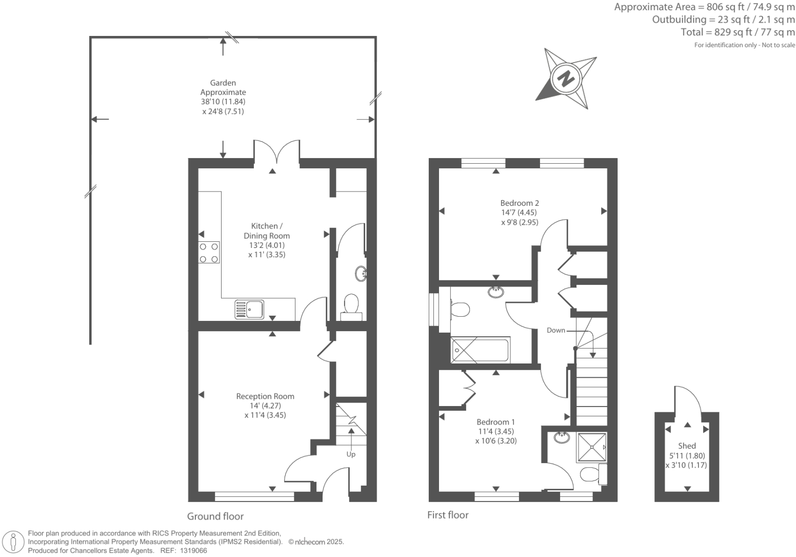
Built in 2021 and offered chain-free, this modern two-bedroom semi delivers low-maintenance, turn-key living in sought-after Chalgrove. The principal bedroom benefits from an en-suite, and both bedrooms are doubles — a tidy layout for a small family or commuter couple. Remaining NHBC warranty provides short-term structural reassurance.
Ground floor living is practical: a front-aspect lounge, contemporary kitchen/diner with integrated appliances and French doors to a south-facing garden, plus a useful utility and cloakroom. The enclosed rear garden has a patio and lawn, with gated side access and off-street parking for two cars — convenient for everyday life but modest in scale.
Positioned in a comfortable suburban village, the location offers genuine lifestyle value: good primary and secondary schools nearby, shops, pubs, GP surgery and recreational facilities, plus fast broadband and excellent mobile signal. Commuters benefit from easy access to the M40 and rail links at Oxford and Didcot Parkway.
Practical considerations: the plot is small and rooms are average sized, so buyers wanting extensive outdoor space or large reception rooms should note the limitation. Overall this low-maintenance, recently built home suits buyers seeking a modern, ready-to-move-in property in a very affluent, low-crime village setting.
2 bedroom semi-detached house for sale in Orchard Close, Chalgrove, OX44 — £290,000 • 2 bed • 1 bath • 883 ft²
3 bedroom semi-detached house for sale in King Close, Chalgrove, Oxford, OX44 — £350,000 • 3 bed • 1 bath • 808 ft²
2 bedroom semi-detached house for sale in Flemming Avenue, Chalgrove, OX44 — £325,000 • 2 bed • 1 bath • 743 ft²
3 bedroom semi-detached house for sale in King Close, Chalgrove, Oxford, OX44 — £350,000 • 3 bed • 2 bath • 808 ft²
2 bedroom semi-detached house for sale in Hillside, Cholsey, OX10 — £400,000 • 2 bed • 2 bath • 889 ft²
2 bedroom terraced house for sale in Saw Close, Chalgrove, OX44 — £315,000 • 2 bed • 1 bath • 631 ft²


























































































