Characterful two-bedroom close to Clapham Common and transport links.
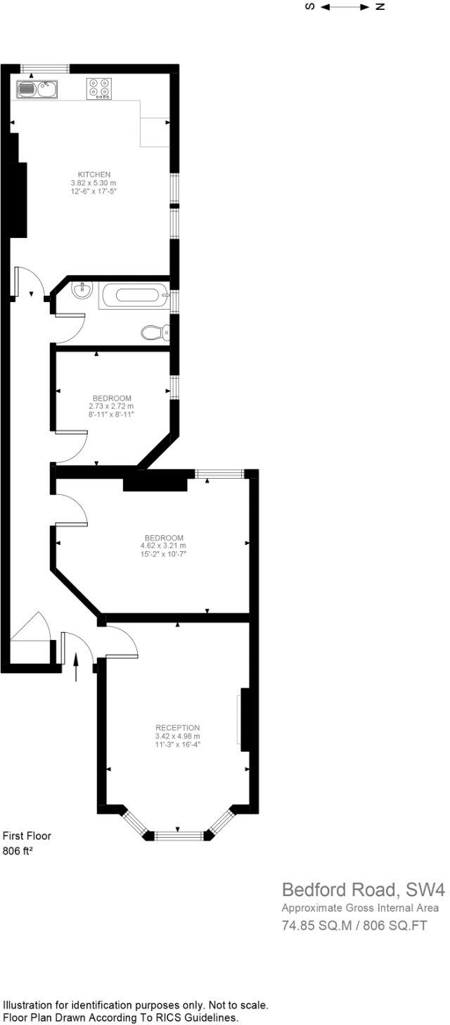
Two double bedrooms with high ceilings and original fireplaces
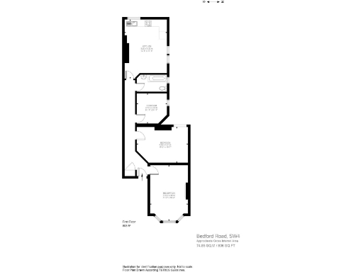
This two-bedroom period flat occupies 806 sq ft in a late-Victorian mid-terrace on Bedford Road, a short walk between Clapham Common and Clapham North stations. High ceilings, large windows and original features such as fireplaces and hardwood floors bring character and generous natural light to the principal rooms. A separate, sizeable kitchen/dining area has been fitted with modern units, creating a comfortable, practical layout for everyday living.
Practical details suit a first-time buyer: a long lease (113 years), below-average service charge (£900) and very low ground rent (£10). Fast broadband and excellent mobile signal support home working, while a range of schools rated Good–Outstanding sit within easy reach. The location balances transport links, local shops and green space, making it simple to access central London or relax at Clapham Common.
Buyers should note a few material points: the building has solid brick walls with no assumed cavity insulation, which can mean higher heating costs and potential retrofit work. There is a single bathroom for two double bedrooms, and local crime levels are reported above average. The property is leasehold, so prospective purchasers should review lease terms and ownership costs carefully.
Overall, this flat offers a character-rich, practical home with strong local amenities and transport links. It will particularly suit first-time buyers seeking period charm and space to personalise, while being mindful of retrofit and security considerations.
2 bedroom apartment for sale in Bedford Road, Clapham, SW4 — £565,000 • 2 bed • 1 bath • 700 ft²
2 bedroom flat for sale in Sisters Avenue, London, SW11 — £660,000 • 2 bed • 1 bath • 720 ft²
2 bedroom flat for sale in Bedford Road, Clapham, SW4 — £550,000 • 2 bed • 1 bath • 802 ft²
2 bedroom flat for sale in Kendoa Road, Clapham High Street, London, SW4 — £400,000 • 2 bed • 1 bath • 506 ft²
2 bedroom apartment for sale in Lavender Gardens, London, SW11 — £700,000 • 2 bed • 1 bath • 948 ft²
2 bedroom flat for sale in Landor Road, Clapham, SW9 — £595,000 • 2 bed • 1 bath • 863 ft²


































