**Standout Features:**
- Classic Victorian/Georgian detached home.
- Three spacious double bedrooms plus a detached one-bedroom annexe.
- Two conservatories and a separate study/sitting room.
- A welcoming entrance hallway and a generous living room overlooking colorful, well-stocked gardens.
- Private off-street parking and proximity to local shops, schools, and public transport.
- Unique outdoor space with summer house and garden store.
**Potential Concerns:**
- Property has solid brick walls but lack insulation.
- Relationship to surrounding historical sites may bring an influx of tourists.
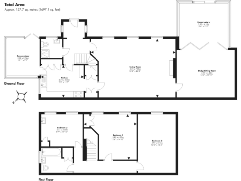
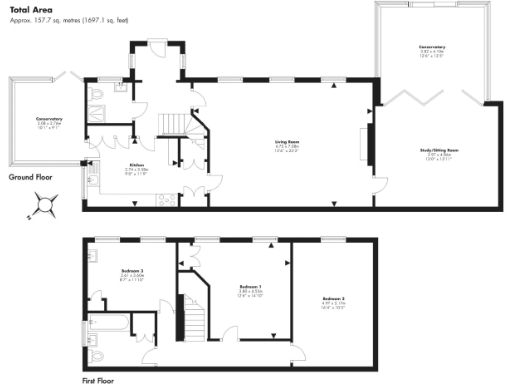
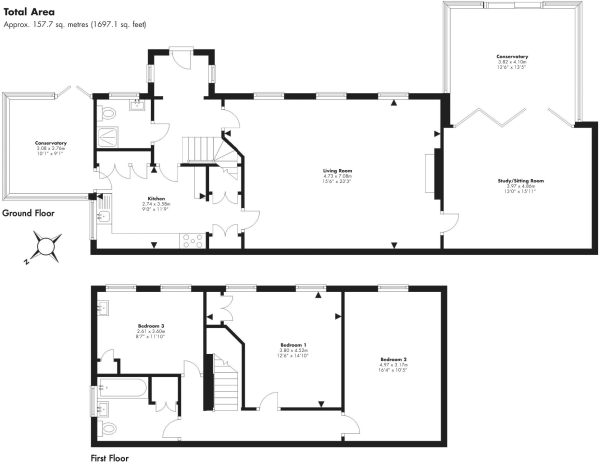
Discover a quintessential period home nestled in the heart of Walmer, just a stone's throw from shops and local amenities. This enchanting residence boasts three bright double bedrooms, a detached annexe perfect for guests or potential rental income, and two delightful conservatories, allowing you to bask in natural light while enjoying views of the sunny, south-facing garden.
The expansive living room and additional study/sitting room provide versatile spaces for family life, while the welcoming hallway and tasteful family bathroom complete the upper floor’s offerings. This property also presents a unique opportunity for future renovations or extensions to further enhance its charm. While the overall condition is attractive, potential buyers should be mindful of the lack of insulation in the solid brick structure.
Set in a peaceful location, away from passing traffic yet just moments from essential services, this home is an exceptional find for families, investors, and those seeking a tranquil seaside retreat. Walmer’s beautiful coastline, historic attractions, and rich local amenities make this a standout opportunity that could be yours before it's gone!
6 bedroom detached house for sale in North Barracks, Walmer, Deal, Kent, CT14 — £900,000 • 6 bed • 3 bath • 2681 ft²
6 bedroom semi-detached house for sale in Dover Road, Walmer, Deal, Kent, CT14 — £1,000,000 • 6 bed • 3 bath • 1864 ft²
3 bedroom semi-detached house for sale in Walmer Castle Road, Walmer, CT14 — £460,000 • 3 bed • 1 bath • 1412 ft²
3 bedroom semi-detached house for sale in Cambridge Road, Walmer, Deal, Kent, CT14 — £525,000 • 3 bed • 1 bath • 1835 ft²
5 bedroom detached house for sale in The Maltings, Walmer, Deal, Kent, CT14 — £650,000 • 5 bed • 2 bath • 2046 ft²
4 bedroom detached house for sale in Balfour Road, Walmer, CT14 — £760,000 • 4 bed • 1 bath • 2200 ft²














































































































































