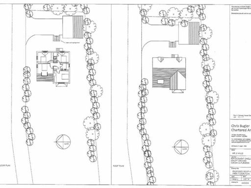
### Standout Features:
- **Planning Permission Granted** for a detached four-bedroom home.
- **Cul-de-sac Location** in a small development of seven properties.
- **Services Ready for Connection** – water, electricity, and drainage.
- **Affordable Price** – competitively priced at £38,000.
- **Potential for Customization** and family-oriented living.
### Summary:
Discover an exceptional self-build opportunity with this vacant plot of land in the picturesque Millom, where planning permission has been granted for a spacious detached four-bedroom residence. Nestled in a quiet cul-de-sac of just seven homes, this plot is perfect for those looking to create their own oasis in a tranquil residential setting.
The land is ready for connection to essential services and offers ample space for a thoughtfully designed family home complete with a garden. While the plot requires some landscaping to remove overgrown vegetation, it presents a blank canvas to manifest your dream living space. Priced attractively at £38,000, it reflects great potential for builders, developers, or individuals eager to bring their vision to life.
This area benefits from a low crime rate and has nearby amenities including shops and recreational facilities, making it an ideal location for families or first-time buyers seeking a safe community to grow. Don’t miss out on the chance to secure your future home; early interest is strongly encouraged as opportunities like this are rare in such a desirable locale.
Land for sale in Bay View Close, Millom, Cumbria, LA18 — £38,000 • 1 bed • 1 bath
Land for sale in North Lane, Haverigg, HAVERIGG, LA18 — £125,000 • 1 bed • 1 bath
Land for sale in Land At Horn Hill, MILLOM, LA18 — £40,000 • 1 bed • 1 bath
Plot for sale in 2 Woodland Road, Ulverston, LA12 0DX, LA12 — £400,000 • 1 bed • 1 bath • 850 ft²
Land for sale in Askam Road, Dalton-In-Furness, LA15 — £200,000 • 1 bed • 1 bath
Residential development for sale in LA18 5LS, LA18 — £360,000 • 1 bed • 1 bath


































