**Standout Features:**
- Newly built, four-bedroom detached house
- Contemporary design with cedar cladding and mellow brickwork
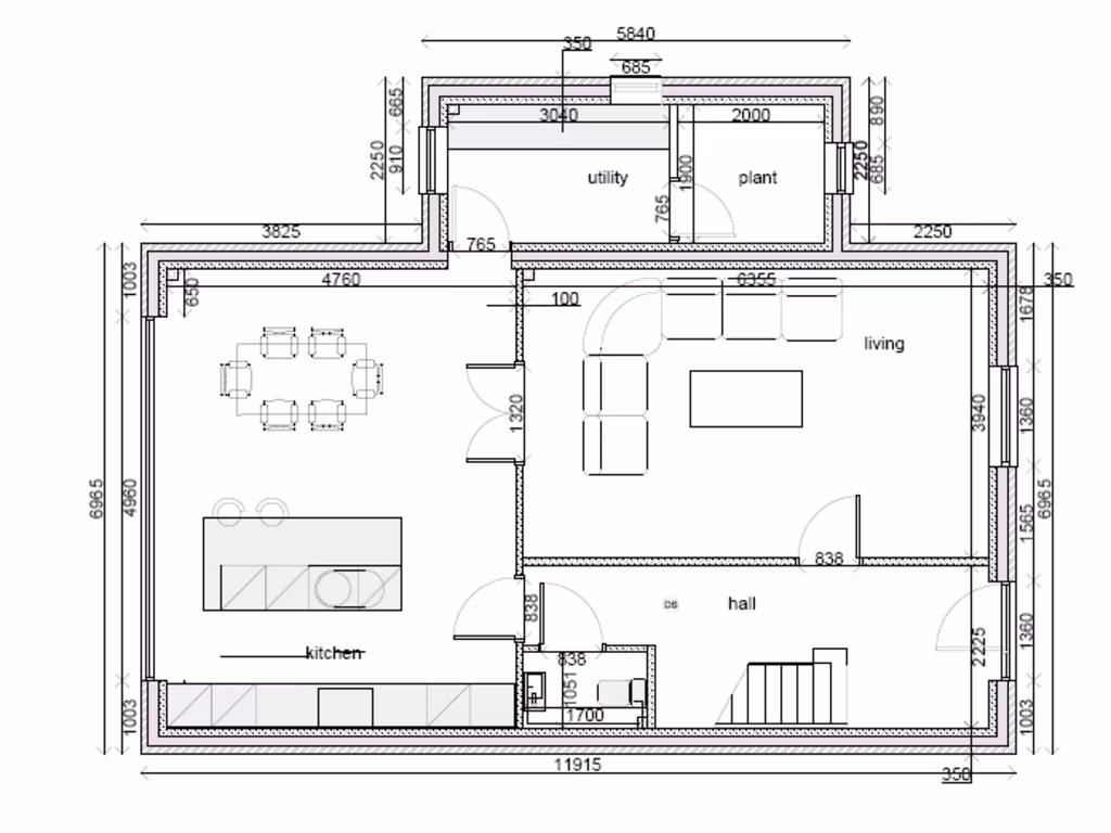
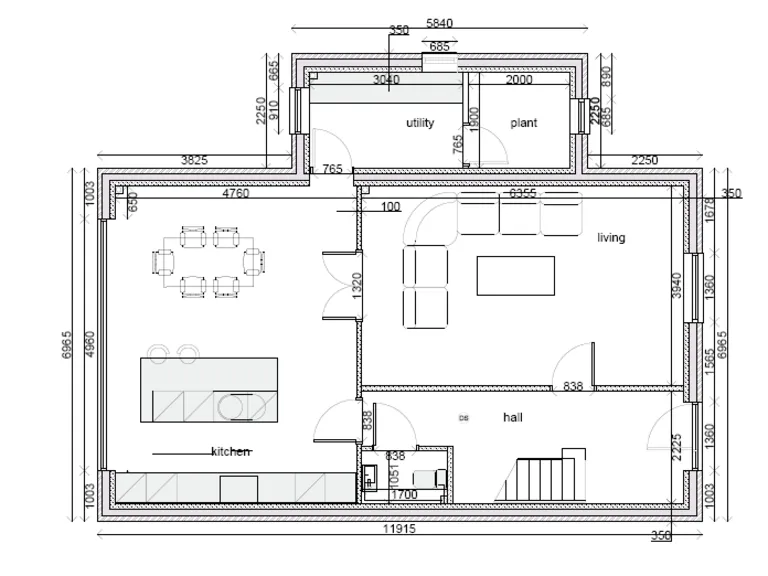
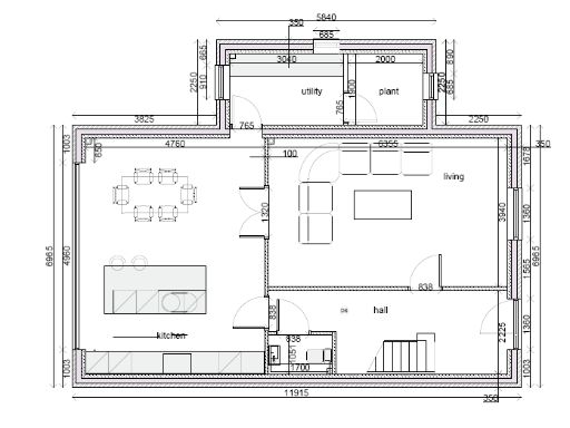
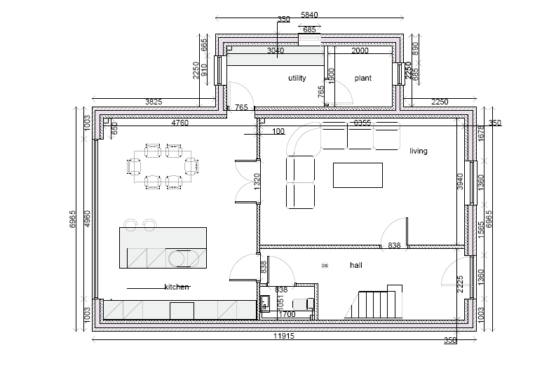
- Spacious open-plan kitchen/dining area with high-end appliances
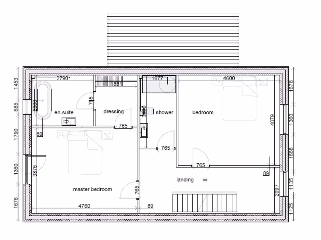
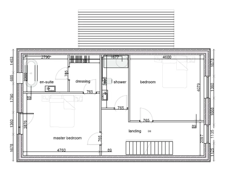
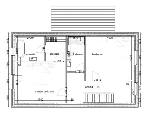
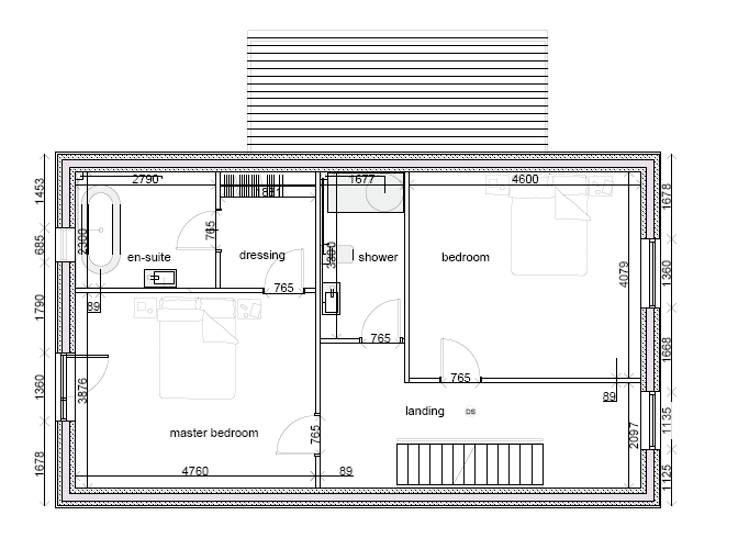
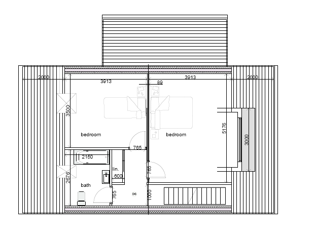
- Master bedroom with walk-in dressing room and en-suite
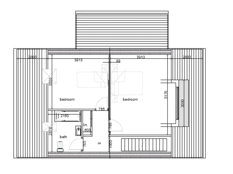
- Luxurious family bathroom and trendy upstairs shower room
- Large wraparound garden and patio
- Off-street parking for multiple vehicles
- Energy-efficient features including heat pumps
- Chain-free and part-exchange available
Welcome to this stunning four-bedroom detached new build nestled on Station Road in the charming village of St. Margarets-At-Cliffe. This property boasts an open-plan kitchen and dining area equipped with high-end appliances, stylish quartz countertops, and an impressive island perfect for entertaining. The master bedroom is a true highlight, featuring a walk-in dressing room and a modern en-suite bathroom. With spacious rooms throughout, including two additional double bedrooms on the upper floors, this home is perfect for families seeking comfort and style.
Step outside to enjoy a generous wraparound garden, offering ample space for outdoor activities and entertaining, complemented by off-street parking for several vehicles. Situated in an idyllic spot adjacent to tranquil fields and woodlands, yet conveniently within reach of transport links and local amenities, this property represents a rare opportunity for buyers looking for both luxury and practicality in their new home.
While the house is beautifully designed and move-in ready, potential buyers should note that this is a new build, thus there are no immediate maintenance concerns. The very affluent St. Margarets-At-Cliffe community also offers access to outstanding local schools, ensuring a nurturing environment for families. Don't miss your chance to make this contemporary sanctuary your own—properties of this caliber don’t stay on the market for long!
4 bedroom detached house for sale in Station Road, St. Margarets-At-Cliffe, CT15 — £700,000 • 4 bed • 3 bath • 2018 ft²
4 bedroom detached house for sale in Station Road, St. Margarets-At-Cliffe, CT15 — £750,000 • 4 bed • 3 bath • 2598 ft²
4 bedroom detached house for sale in The Heights, Station Road, Dover, Kent, CT15 — £700,000 • 4 bed • 3 bath • 1494 ft²
4 bedroom detached house for sale in Plot 1, 2 Nursery field, Downs Road, East Studdal, Dover CT15 5BX, CT15 — £750,000 • 4 bed • 2 bath • 2186 ft²
4 bedroom detached house for sale in The Nursery, Downs Road, East Studdal, Dover CT15 5BX, CT15 — £775,000 • 4 bed • 2 bath • 2186 ft²
4 bedroom detached house for sale in The Heights, Station Road, Dover, Kent, CT15 — £750,000 • 4 bed • 3 bath • 2029 ft²














































