Retirement-friendly three-bedroom home with low-maintenance appeal and flexible purchase options.
Victorian mid-terrace with original fireplace and bay front
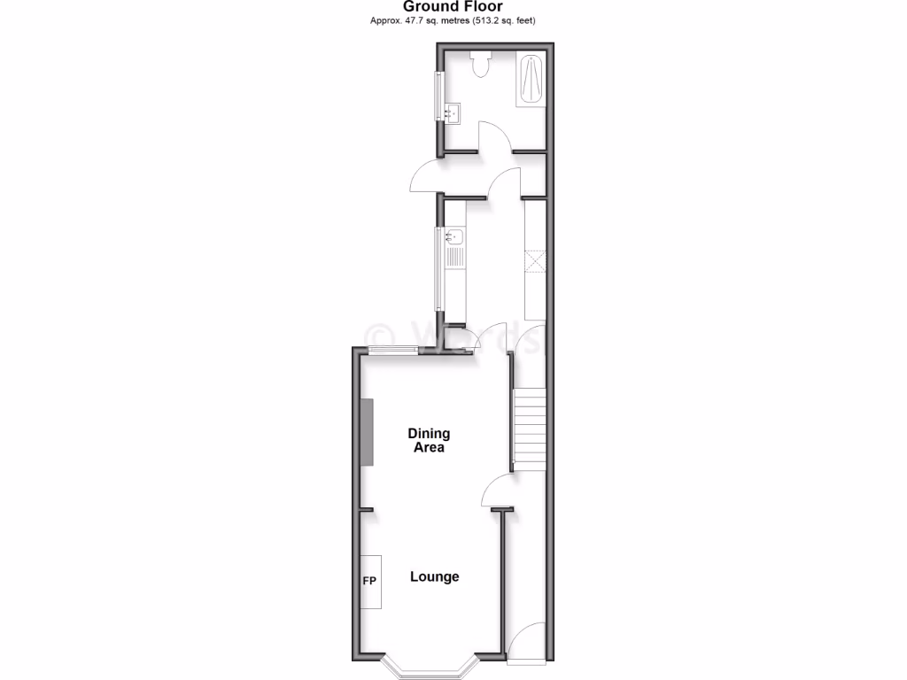
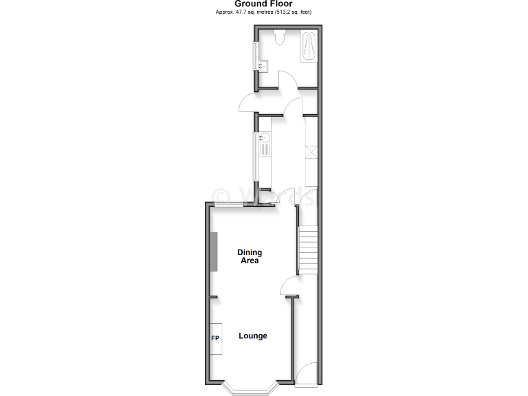
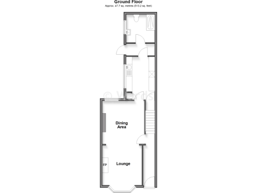
A charming Victorian mid-terrace offering a comfortable, compact layout and genuine retirement suitability. The house keeps period features such as an original fireplace and presents an open-plan lounge/diner that creates a sociable ground floor. The rear garden and three bedrooms provide practical space while keeping maintenance manageable.
This property is being promoted with a Home for Life Lifetime Lease price example for buyers aged 60+; typical savings against full market value are quoted between 20–50%. The guide Lifetime Lease price shown is £152,500 (illustrative); the full market price is £230,000. The actual Lifetime Lease price will depend on your age, circumstances and any share you choose to purchase.
Practical considerations include solid brick walls assumed to have no insulation, an older single bathroom and a small rear garden. The area scores as deprived with above-average crime levels, so buyers should consider local environment factors. Broadband and mobile signal are strong, and the property is sold chain-free for a faster move.
This home suits a downsizer seeking character, convenience and lower-maintenance living, or an over-60 buyer looking to benefit from a Lifetime Lease arrangement. Interested parties should verify all measurements, services and tenure details, and note some cosmetic updating or insulation work may be desirable.
5 bedroom terraced house for sale in Grange Road, Ramsgate, Kent, CT11 — £281,000 • 5 bed • 2 bath • 1852 ft²
3 bedroom terraced house for sale in Thanet Road, Margate, Kent, CT9 — £215,000 • 3 bed • 1 bath • 833 ft²
3 bedroom terraced house for sale in Broad Street, Ramsgate, Kent, CT11 — £198,500 • 3 bed • 1 bath • 754 ft²
3 bedroom link detached house for sale in Elmstone Road, Ramsgate, Kent, CT11 — £231,500 • 3 bed • 1 bath • 1023 ft²
3 bedroom terraced house for sale in College Road, Deal, Kent, CT14 — £238,000 • 3 bed • 1 bath • 1324 ft²
3 bedroom ground floor maisonette for sale in Paragon, Ramsgate, Kent, CT11 — £264,500 • 3 bed • 2 bath • 1303 ft²






















































