Energy-efficient three-bed home with generous garden and garage.
Three double bedrooms with en-suite to principal bedroom
Open-plan kitchen/dining/family room with island and patio doors
Ground-floor cloakroom plus utility/laundry room
Detached garage with power and light; driveway parking for multiple cars
Solar panels plus gas central heating to radiators for efficiency
Freehold, new-build and no flood risk
Overall internal size is modest — about 803 sq ft
Nearby state schools currently rated 'requires improvement' by Ofsted
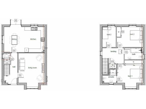
This brand-new three-bedroom detached home is laid out for everyday family life, with an open-plan kitchen/dining/family room and a separate front reception room. The central island and floor-to-ceiling doors deliver easy entertaining and direct access to a generous enclosed rear garden. Solar panels and gas central heating to radiators help keep running costs low.
Accommodation includes three double bedrooms, an en-suite to the principal bedroom and a family bathroom. Practical touches include a ground-floor cloakroom, utility/laundry room, driveway parking and a detached garage with power and light. The property is freehold and has no flood risk.
The house sits in a suburban/rural-edge neighbourhood with fast broadband and average local crime levels. The developer offers part-exchange in some circumstances, which can simplify buying. Note the home’s overall internal size is relatively small (about 803 sq ft), so storage solutions and careful furniture planning will help families make the most of the layout.
Local schooling options nearby currently carry ‘requires improvement’ Ofsted ratings; buyers with school-age children should check catchment plans and alternatives. Photos are indicative and some plot features may vary slightly from final finishes.
3 bedroom detached house for sale in Plot 9 Berryfield, PE15 — £315,000 • 3 bed • 2 bath • 1349 ft²
3 bedroom detached house for sale in Plot 8 Berryfield, PE15 — £315,000 • 3 bed • 2 bath • 1349 ft²
3 bedroom detached house for sale in Berryfield, March, PE15 — £315,000 • 3 bed • 2 bath • 787 ft²
3 bedroom detached house for sale in Berryfield, March, PE15 — £300,000 • 3 bed • 2 bath • 899 ft²
3 bedroom detached house for sale in Berryfield, March, PE15 — £300,000 • 3 bed • 2 bath • 899 ft²
3 bedroom detached house for sale in Plot 6 Berryfield, PE15 — £319,000 • 3 bed • 2 bath • 803 ft²














































