### Standout Features:
- Prime beachfront location in Pendine, Carmarthen
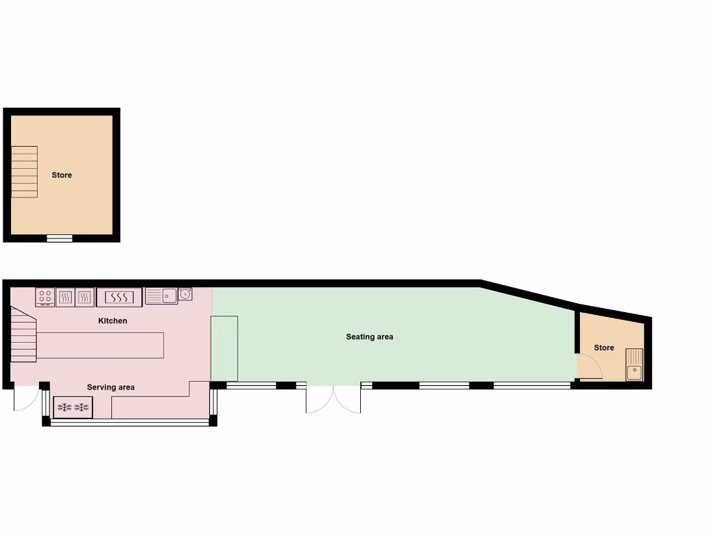
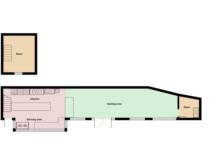
- Fully licensed café/restaurant potential with 40 internal and 40 external covers
- Stunning sea views and alfresco dining options
- Freehold commercial property, ideal for investment or business ownership
- Additional fixtures and fittings available upon negotiation
- Low local crime rates and a slow broadband speed for minimal distractions
- Surrounded by natural beauty with opportunities for further development
### Summary:
Seize this exceptional opportunity to own a thriving coastal café, Point Café, right in the heart of the charming village of Pendine. With seating for 40 inside and another 40 outside, guests can relish the breathtaking views of seven miles of sandy beach while enjoying alfresco dining. Currently designed for a café/restaurant setup, the property encompasses a modest but bright and airy space thanks to large windows that flood the interiors with natural light.
Situated in a low-crime area with an inviting community atmosphere, the property also boasts a flexible layout, making it suitable for various commercial uses or even personal residential adaptation. Additionally, the expansive outdoor seating area and grassy plot present excellent potential for leisure and further development.
While the property is in a remoter community with access to basic amenities, it's a unique investment for those looking to tap into the tourism trade driven by the famous Pendine Sands. Don’t miss your chance to dive into a lucrative business opportunity in an idyllic location—properties like this don’t stay on the market for long!
4 bedroom detached house for sale in Pendine, Carmarthen, SA33 — £625,000 • 4 bed • 3 bath • 1560 ft²
Restaurant for sale in Ferryside, SA17 — £375,000 • 1 bed • 1 bath • 431 ft²
Restaurant for sale in Carmarthenshire - Well Established Tearoom In Busy Coastal Tourist Location Opposite Outstanding Medieval Castle, SA33 — £345,000 • 2 bed • 1 bath
Commercial property for sale in King Street, Laugharne, Carmarthen, SA33 — £225,000 • 1 bed • 1 bath • 1441 ft²
Restaurant for sale in Temple Bar, Amroth, Narberth, Pembrokeshire, SA67 8ND, SA67 — £595,000 • 2 bed • 1 bath
2 bedroom flat for sale in The Waterfront , Marsh Road , Pendine, Laugharne, Carmarthen, SA33 — £155,000 • 2 bed • 1 bath • 517 ft²






























































































