Bright Victorian rooms, loft master and quick links to East Croydon.
Modern open-plan kitchen with central island and dining area
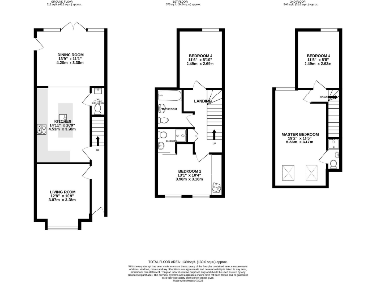
Set over three floors, this Victorian semi-detached house balances original character with contemporary living. Tall bay windows and high ceilings give the front reception room a bright, airy feel, while a recent loft conversion provides an impressive master suite with a Juliette balcony and en‑suite. The rear of the house has been opened up into a modern kitchen with central island and dining space that flows to a lawned garden and deck via French doors — good for family life and entertaining.
Practical features include an upstairs en‑suite to the front bedroom, a ground‑floor WC, driveway parking for one car and air conditioning units in key rooms for year‑round comfort. The property sits in sought‑after Addiscombe with fast trains and tram links at nearby East Croydon, local shops, parks and several well‑rated primary and secondary schools within walking distance — a strong commuter and family location.
Buyers should note material facts: there is no central heating system currently present (electric heaters assumed) and the house has solid brick walls with no known cavity insulation. The plot is relatively small and parking is limited to a single driveway space. EPC is C and council tax band D. These factors mean prospective purchasers may want to budget for heating upgrades and wall insulation improvement works.
Overall this property will suit growing families wanting generous bedroom space, modern kitchens and quick access to transport links, while buyers prepared to make modest energy efficiency or heating upgrades will find good long‑term potential.
4 bedroom semi-detached house for sale in Ashburton Road, Croydon, Surrey, CR0 — £600,000 • 4 bed • 1 bath • 1263 ft²
4 bedroom terraced house for sale in Warren Road, Addiscombe, CR0 — £529,950 • 4 bed • 1 bath • 1008 ft²
4 bedroom end of terrace house for sale in Nihill Place, Croydon, Surrey, CR0 — £550,000 • 4 bed • 2 bath • 1220 ft²
3 bedroom terraced house for sale in Coniston Road, Addiscombe, CR0 — £525,000 • 3 bed • 1 bath • 1057 ft²
4 bedroom semi-detached house for sale in Ashburton Avenue, Addiscombe, CR0 — £599,950 • 4 bed • 2 bath • 1437 ft²
3 bedroom house for sale in Fullerton Road, Addiscombe, CR0 — £470,000 • 3 bed • 1 bath • 979 ft²


















































































