Large refurbished chalet with extensive gardens and double garage.
Spacious plot just over one third of an acre
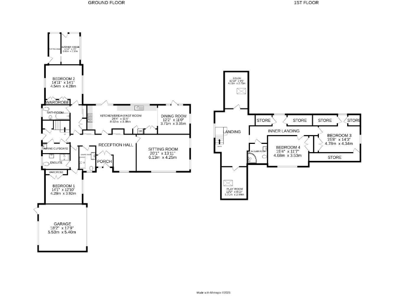
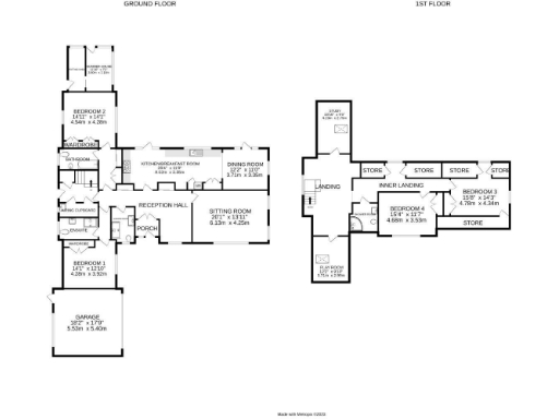
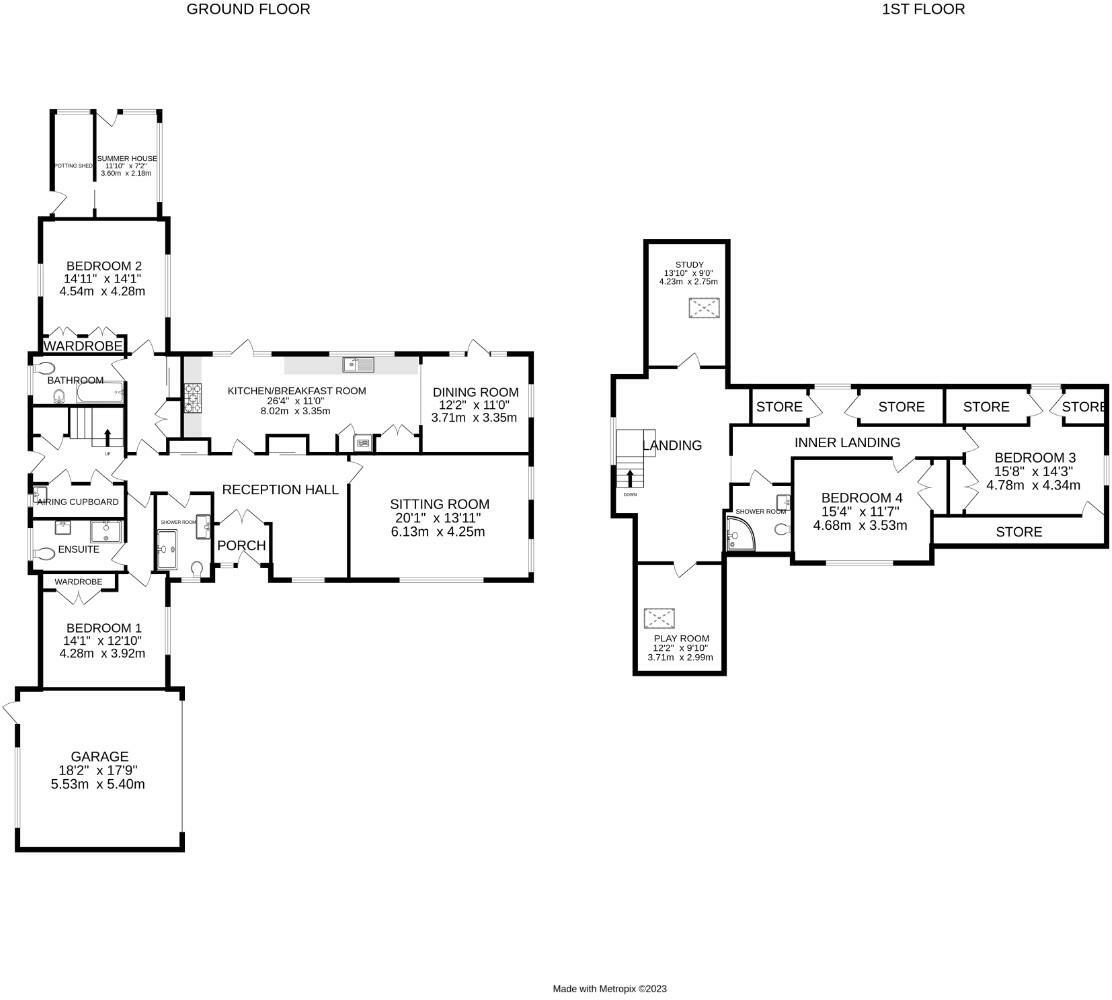
Set on just over a third of an acre in leafy Stoneygate, this refurbished chalet-style detached house offers exceptionally large living space across ground and first floors. The recently updated living kitchen is a bright, open-plan hub with quartz surfaces and integrated appliances, while separate sitting room, sun room and formal reception spaces provide a mix of contemporary and traditional character. Four bedrooms and four bathrooms — including a ground-floor master with en suite — suit a family needing flexible accommodation and occasional home working, with dedicated study and playroom areas on the upper level.
Outside, a sweeping tarmac driveway leads to a double garage and abundant parking. The deep, lawned rear garden with mature trees, patio and gravel pathways provides privacy and substantial outdoor amenity for children, entertaining and gardening. The plot size and position in a desirable, well-connected suburb are major long-term assets.
Practical points: the house has mains gas central heating, double glazing and an EPC rating of C. It has been newly renovated throughout but the original cavity walls were constructed without insulation (assumed), which may be relevant for future energy improvements. Council tax sits at a higher band (G) and should be factored into ongoing costs.
This property is aimed at established families and professionals seeking generous living space close to schools, local boutiques and the city centre. It combines immediate move-in comfort with clear potential for further energy-efficiency upgrades or personalization to taste.
4 bedroom detached house for sale in Westminster Road, Stoneygate, Leicester, LE2 — £735,000 • 4 bed • 2 bath • 1755 ft²
5 bedroom detached house for sale in Morland Avenue, Stoneygate, Leicester, LE2 — £825,000 • 5 bed • 2 bath • 2400 ft²
4 bedroom detached house for sale in Westernhay Road, Stoneygate, LE2 — £985,000 • 4 bed • 2 bath • 2500 ft²
4 bedroom detached house for sale in Dovedale Road, Stoneygate, Leicester, LE2 — £465,000 • 4 bed • 1 bath • 1033 ft²
3 bedroom detached house for sale in Grenfell Road, Leicester, Leicestershire, LE2 — £570,000 • 3 bed • 1 bath • 1367 ft²
4 bedroom detached house for sale in Elmsleigh Avenue, Stoneygate, Leicester, LE2 — £550,000 • 4 bed • 2 bath • 1593 ft²


























































































