Stylish three-bedroom home near top schools and strong transport links.
South-facing, level rear garden with lawn and patio
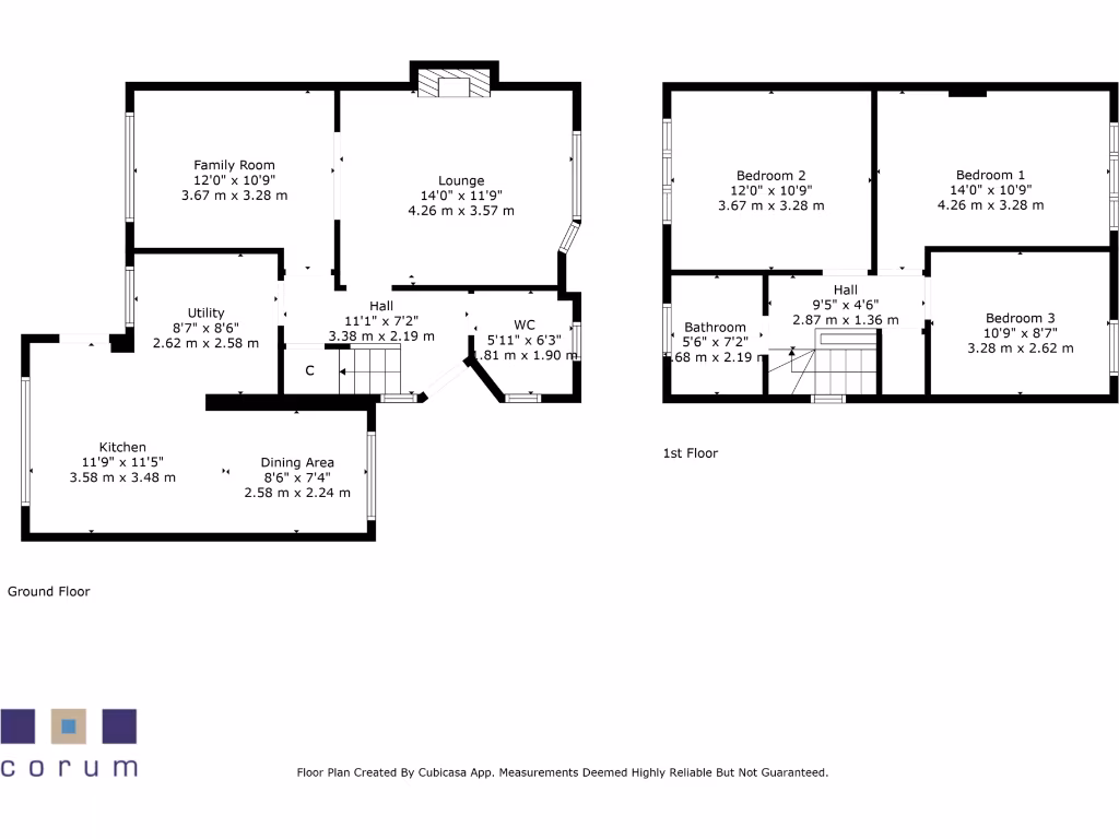
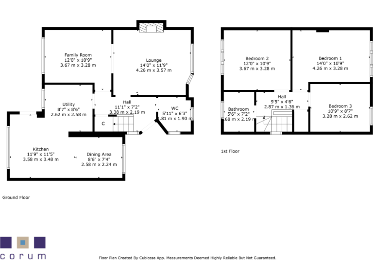
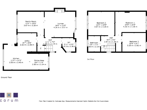
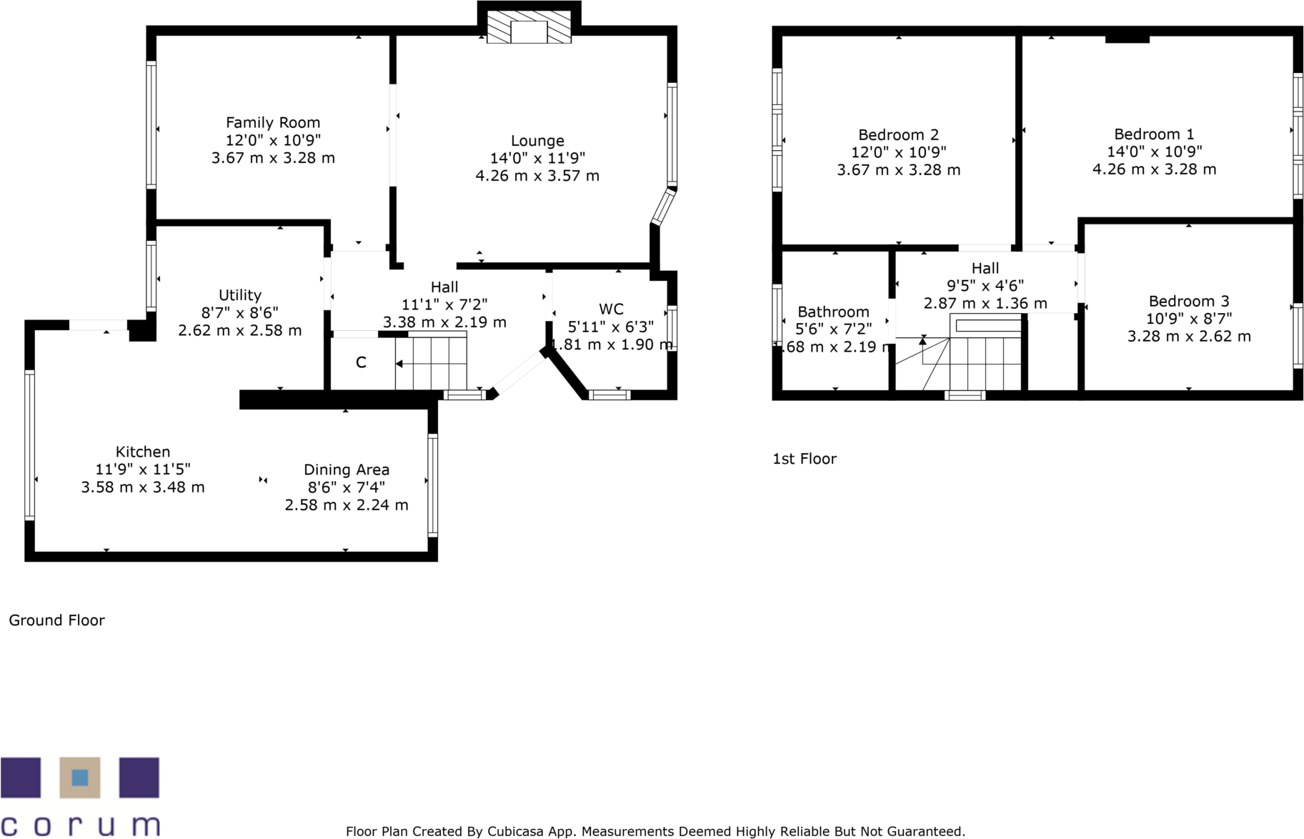
Set in Bearsden's sought-after Gartconnell pocket, this semi-detached villa offers a bright, family-friendly layout and a recently fitted kitchen in a single-storey extension. The home benefits from fresh, modern décor throughout, gas central heating and double glazing, creating a comfortable move-in condition for everyday living.
A real highlight is the level, south-facing rear garden – fully enclosed and landscaped with lawn and patio for outdoor dining and play. The wide monobloc driveway provides excellent off-street parking and kerb appeal is strong thanks to the crisp rendered exterior and mature hedging.
Upstairs provides two generous double bedrooms and a further single, served by a stylishly tiled family bathroom. Practical storage includes under-stair space and a utility room off the kitchen, while fast broadband and average mobile signal support home working and family connectivity.
Notable practical points: the property sits in a higher council tax band and has an EER Band D, which may affect running costs compared with newer-build alternatives. Local statistics also record pockets of area deprivation nearby despite the immediate Gartconnell area's strong schooling and amenities, so buyers should consider wider neighbourhood variations when viewing.
3 bedroom semi-detached house for sale in 32 St. Andrews Drive, Bearsden, G61 4NW, G61 — £275,000 • 3 bed • 2 bath • 721 ft²
3 bedroom semi-detached house for sale in 67 Milverton Avenue, Bearsden, G61 4BG, G61 — £320,000 • 3 bed • 1 bath • 1098 ft²
3 bedroom semi-detached house for sale in 16 Allander Road, Bearsden, G61 1LT, G61 — £265,000 • 3 bed • 1 bath • 904 ft²
3 bedroom semi-detached house for sale in 3 Lochnagar Drive, Bearsden, G61 4RP, G61 — £360,000 • 3 bed • 2 bath • 1324 ft²
5 bedroom detached house for sale in 26 Norman Macleod Crescent, Bearsden, G61 3BF, G61 — £750,000 • 5 bed • 4 bath • 2680 ft²
3 bedroom semi-detached house for sale in 54 Speirs Road, Bearsden, G61 2LU, G61 — £300,000 • 3 bed • 1 bath • 936 ft²






















































































































































































