Mixed-use building with planning consent for four flats and ground-floor retail.
Prime corner position opposite Long Eaton train station
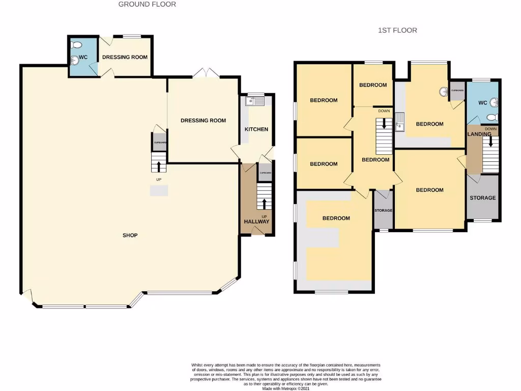
This substantial two-storey brick building sits on a prominent corner of Tamworth Road in the heart of Sawley, directly opposite Long Eaton train station. Currently trading as a ground-floor retail unit with substantial office space above, the property is offered freehold and chain free — a clear choice for developers and investors targeting mixed‑use returns.
Planning permission has been granted to convert the upper floors into four one- and two‑bedroom self-contained apartments while retaining a retail/commercial unit at ground level. The building’s large glazed frontage, high footfall location and excellent transport links make it well suited to residential conversion, HMO use (subject to any local licensing) or continued commercial operation.
The property is sold in its existing condition and will require refurbishment and conversion work to implement the approved plans — buyers should allow for construction, fit‑out and any further statutory consents. There is a garden area to the rear that is not included in the sale but may be available by separate negotiation and could provide parking or amenity space subject to planning.
With air conditioning already installed, low flood risk and fast broadband/mobile coverage, this versatile building offers a rare opportunity in a well‑served, affluent suburb. It’s aimed at developers, investors and those seeking a long‑term mixed‑use asset with planning in place to accelerate delivery.
3 bedroom mixed use property for sale in Main Street, Long Eaton, NG10 — £325,000 • 3 bed • 1 bath • 1411 ft²
Commercial property for sale in Derby Road, Stapleford, NG9 — £300,000 • 2 bed • 1 bath • 915 ft²
2 bedroom detached house for sale in Derby Road, Stapleford, NG9 — £285,000 • 2 bed • 1 bath • 915 ft²
Commercial property for sale in Nottingham Road, DE7 — £185,000 • 1 bed • 1 bath • 755 ft²
3 bedroom house for sale in Hall Street, Nottingham, NG5 — £240,000 • 3 bed • 1 bath • 1099 ft²
2 bedroom house for sale in TOWN CENTRE RESI/COMMERCIAL Sparrow Hill, Loughborough, LE11 — £160,000 • 2 bed • 1 bath • 719 ft²


































































































