Compact modern flat minutes from Cobham High Street, ideal for first-time buyers.
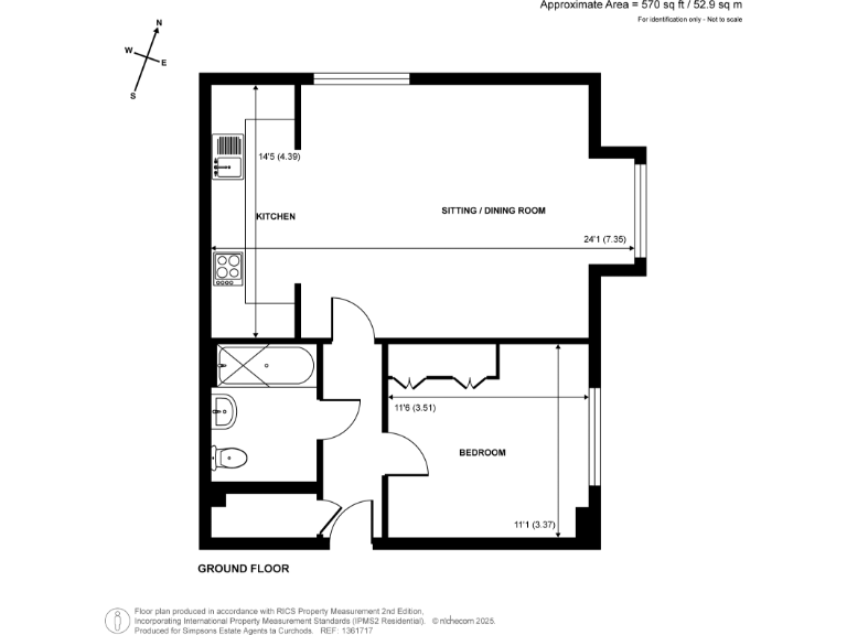
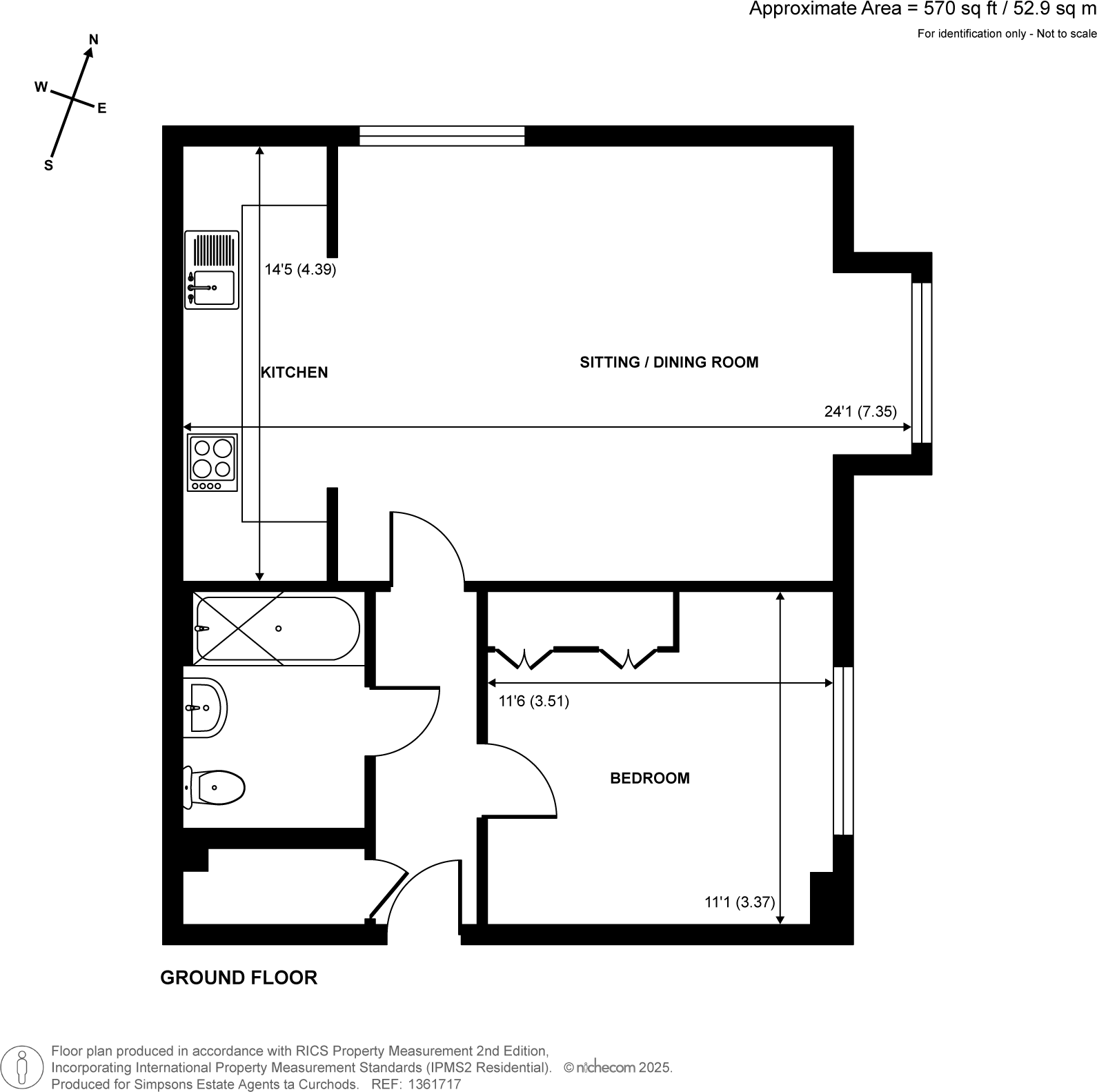
Ground-floor one-bedroom apartment, approx 570 sq ft
Private gated development with allocated off-street parking
Private communal gardens with landscaped planting and paths
Spacious open-plan kitchen/living room, modern fitted kitchen
Chain free sale with about 104 years remaining on lease
Small ground rent (£185) and leasehold tenure
Electric underfloor heating; main fuel is electricity (higher running costs)
Local crime levels above average — consider security and insurance
This ground-floor one-bedroom apartment occupies about 570 sq ft in a small private gated development, just 0.5 miles from Cobham High Street. The layout centres on a spacious open-plan kitchen/living room with a modern fitted kitchen and views across well-kept communal gardens. Allocated off-street parking and tasteful external planting add convenience and kerb appeal.
The building is a relatively recent build (circa 2003–2006) with double glazing and cavity wall insulation. The flat is chain-free and comes with a lengthy lease of around 104 years and an affordable council tax band. Service liabilities are modest: a small ground rent of £185 is payable.
Practical considerations are clear: heating is electric underfloor, and main fuel is electricity, which can be more expensive than gas. Crime levels in the area are above the national average, so buyers should consider security and insurance costs. Broadband speeds are average and mobile signal is excellent.
Overall this is a straightforward, low-maintenance purchase suitable for a first-time buyer or investor seeking a compact, modern apartment near the town centre. The property needs little cosmetic updating but offers potential for straightforward refurbishment to personalise the space or improve rental appeal.
1 bedroom apartment for sale in Woodgate Close, Cobham, Surrey, KT11 — £240,000 • 1 bed • 1 bath • 580 ft²
2 bedroom flat for sale in Trafalgar Court, Cobham, Surrey, KT11 — £300,000 • 2 bed • 1 bath • 642 ft²
1 bedroom apartment for sale in Cobham Gate, Freelands Road, Cobham, KT11 — £275,000 • 1 bed • 1 bath • 549 ft²
2 bedroom apartment for sale in Copse Road, Cobham, Surrey, KT11 — £465,000 • 2 bed • 2 bath • 691 ft²
2 bedroom flat for sale in Lyster Mews, Cobham, Surrey, KT11 — £285,000 • 2 bed • 1 bath • 704 ft²
2 bedroom apartment for sale in Between Streets, Cobham, Surrey, KT11 — £445,000 • 2 bed • 2 bath • 597 ft²






















































