SO51 8GF - 4 bedroom detached house for sale in Palmerston Street, Rom…

View on Property Piper

4 bedroom detached house for sale in Palmerston Street, Romsey, Hampshire, SO51

Summary - PARK HOUSE, 9 PALMERSTON STREET ROMSEY SO51 8GF

4 bed 2 bath Detached

Spacious Grade II listed family house with south garden and garage, moments from Romsey Market Square.
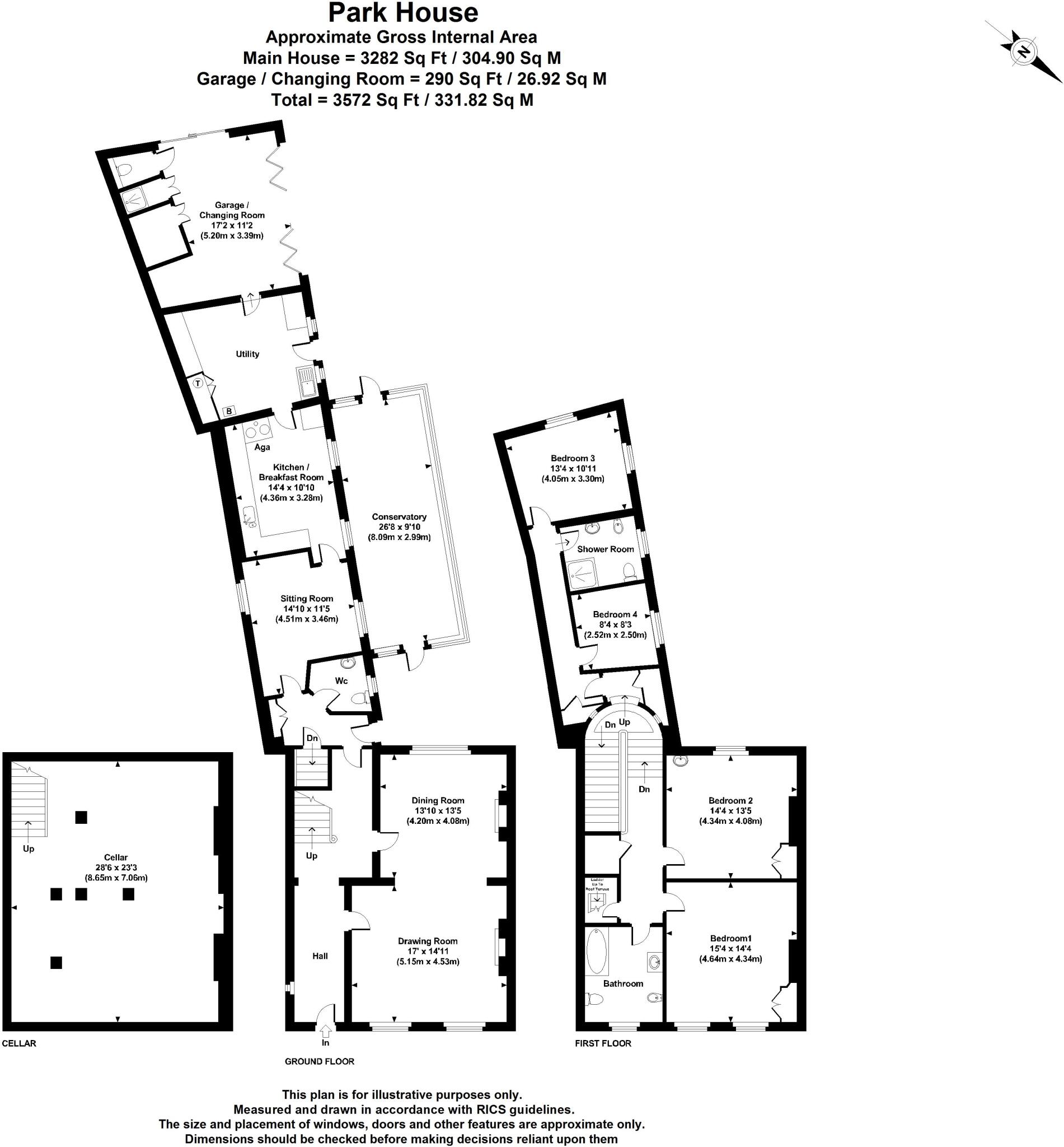
Grade II listed Georgian detached house, approx. 3,300 sqft
Park House is a landmark Grade II listed Georgian detached home occupying approximately 3,300 sqft in the heart of Romsey. Its central, enviable position—just two minutes’ walk from the Market Square—pairs grand early-19th-century proportions with a private, south-facing walled garden and extensive off-street parking including a double garage.

Inside, high ceilings and generous room sizes create dramatic living spaces across multiple reception rooms. Decorative carved architraves, ornamental plaster coving, a striking fanlit staircase and original period detailing give the house character and presence. Practical space includes a large cellar, utility room and a hidden internal staircase to a roof vantage point with near-360° views over Romsey.

This property will suit buyers seeking a substantial family home in a prestigious, highly qualified neighbourhood, close to good state and independent schools and local amenities. The size and layout offer flexibility for formal entertaining, home working and family life.

Important considerations: the Grade II listing means any alterations will require listed-building consent and may restrict changes; prospective buyers should allow for that process and potential conservation costs. Council tax is Band G, which is relatively expensive. Viewings are by appointment only.

Property Details

Image Descriptions

Floorplan Description

Rooms

Textual Property Features

Target Audience

AI Tags

Detected Visual Features

Nearby Schools

Nearest Bars And Restaurants

,,,,}

Nearest General Shops

,,}

Nearest Grocery shops

,,}

Nearest Supermarkets

,,}

Nearest Religious buildings

,,}

Nearest Medical buildings

,,,}

Nearest Airports

}

Nearest Leisure Facilities

,,,,}

Nearest Tourist attractions

,,}

Nearest Train stations

,,,,}

Nearest Bus stations and stops

,,,,}

Nearest Hotels

,,}

Tags

Local Market Stats

AirBnB Data

Similar Properties

Meta

High Res Images

Compatible Images

Low res Images

Thumbnails

Raw Images

High Res Floorplan Images

Compatible Floorplan Images

Low res Floorplan Images

FloorplanImages Thumbnail

Raw Floorplan Images