Spacious family home on a large plot with flexible living and easy M1 access.
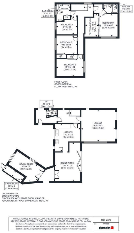
Four/five flexible bedrooms, principal bedroom with en suite and large dressing room
South-facing garden with slate patio accessed by bi-fold doors
Set back behind electric gates; driveway fits up to four cars
Detached garage/outbuilding for storage and bikes
Double glazing and mains gas central heating (boiler and radiators)
Sold at auction via Secure Sale online bidding; terms and conditions apply
Built mid-20th century; may require typical period maintenance
Bathroom layout described in details; confirm total bathroom count at viewing
Set back from the lane behind electric gates, this detached four/five-bedroom home sits on a large private plot with countryside on the doorstep. The well-proportioned living space includes a generous lounge and a bright open-plan kitchen/dining area with bi-fold doors to a south-facing slate patio and enclosed garden — ideal for family life and entertaining.
Upstairs the principal bedroom enjoys countryside views, an en suite shower and a substantial walk-in dressing room. Three further double bedrooms (two with built-in sliding wardrobes) and a family bathroom provide comfortable accommodation; a ground-floor room off the dining area offers a flexible fifth bedroom, home office or playroom.
Practical features include double glazing, mains gas central heating with boiler and radiators, a detached garage/outbuilding and off-street parking for several cars. The property was built in the mid-20th century and sits in a low-crime neighbourhood with good local schools and fast broadband — attractive for families wanting semi-rural living with M1 access nearby.
Important sale information: the property will be sold at auction via Secure Sale online bidding (terms and conditions apply). Viewings are recommended to appreciate the private position, plot size and flexible layout.
4 bedroom detached house for sale in Hall Lane, Brinsley, Nottingham, NG16 — £390,000 • 4 bed • 2 bath • 1573 ft²
4 bedroom detached house for sale in Annesley Lane, Selston, NG16 — £230,000 • 4 bed • 3 bath • 1652 ft²
4 bedroom detached house for sale in Kirkby Lane, Pinxton, Nottingham, Nottinghamshire, NG16 — £375,000 • 4 bed • 3 bath • 2201 ft²
5 bedroom detached house for sale in High Street, Brinsley, Nottingham, NG16 — £575,000 • 5 bed • 2 bath • 2055 ft²
5 bedroom detached house for sale in 211 Wild Hill, Sutton-In-Ashfield NG17 3JF, NG17 — £460,000 • 5 bed • 1 bath • 2227 ft²
4 bedroom detached house for sale in Wagstaff Lane, Jacksdale, Nottingham, NG16 — £450,000 • 4 bed • 2 bath


























































































































