### Standout Features:
- Prime location in Saltcoats Town Centre along a busy road
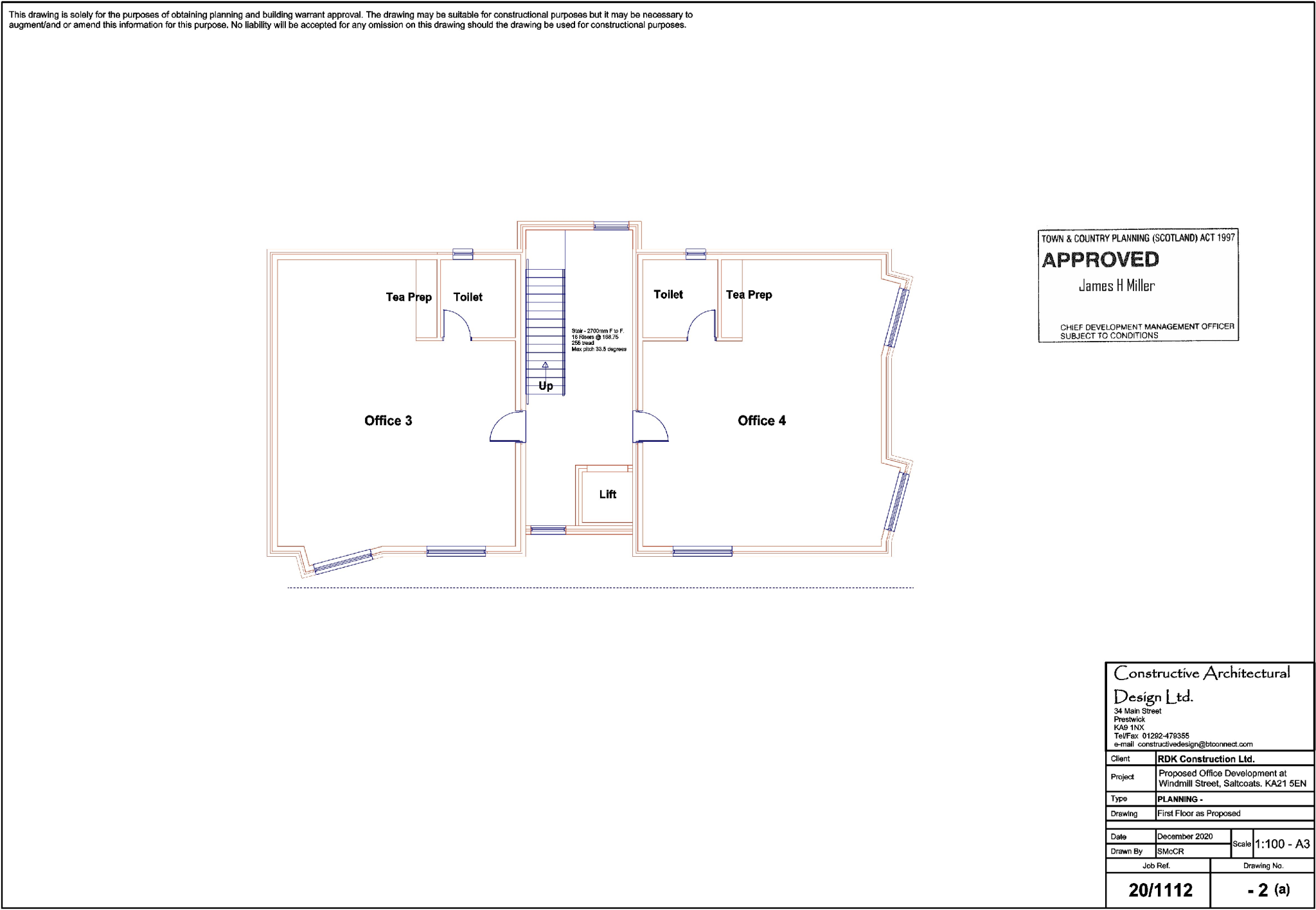
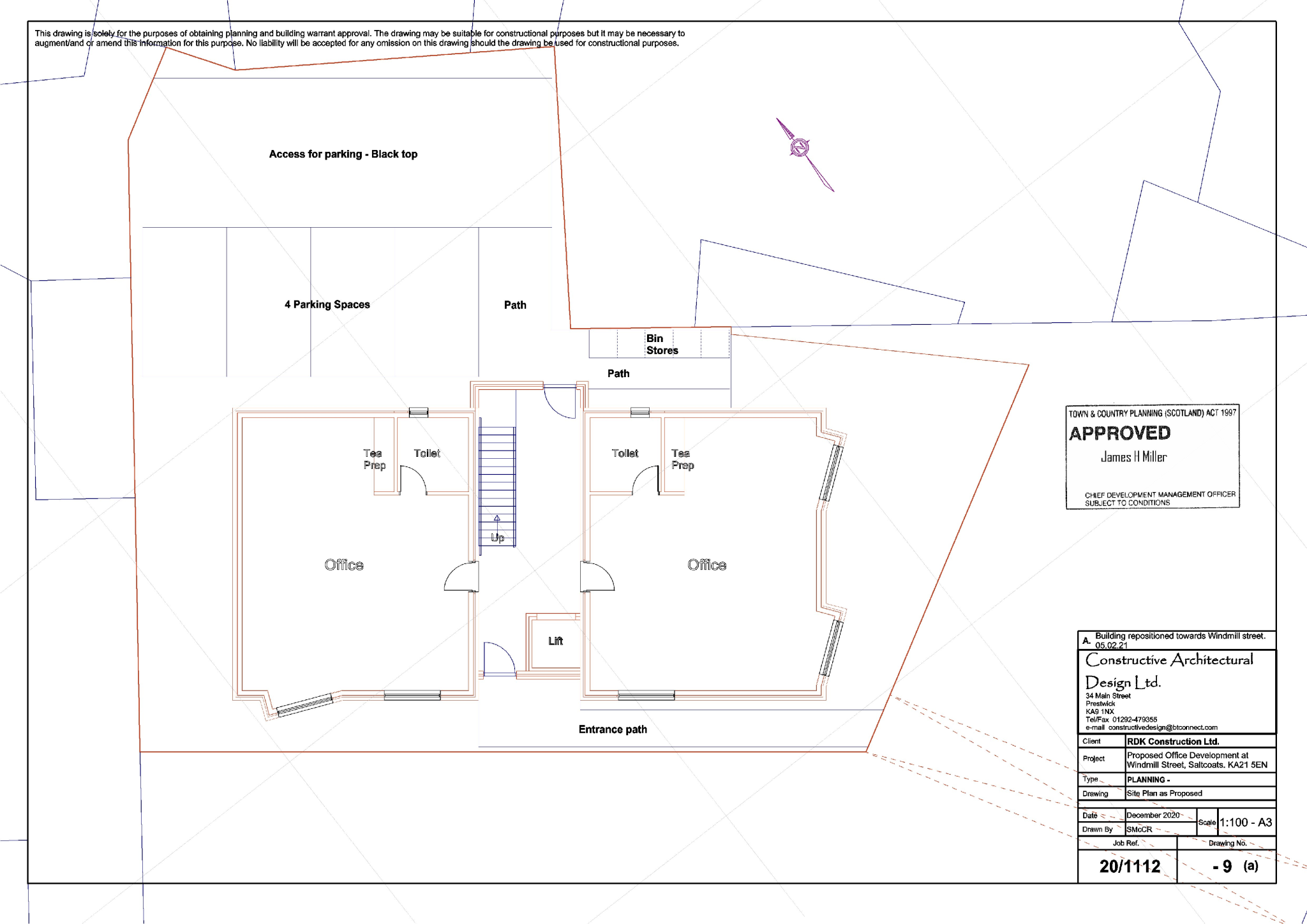
- Development site with planning permission for a 3-storey office block consisting of six suites
- Additional potential for residential development (up to 6 flats) subject to council approval
- Adjacent to public car park, enhancing accessibility
- Site area of 0.04 hectares (0.11 acres)
- Inviting offers over £90,000 with 100% rates relief available through the Small Business Bonus Scheme
This cleared urban plot at 7a Windmill Street is a rare find for investors and developers seeking to capitalize on Saltcoats' commercial and residential potential. Ideally located next to public amenities and transport links, this site offers an established foundation for growth. The approved plan for a three-storey office building presents strong rental possibilities, catering to the area's diverse business needs.
With the option to explore residential development, this opportunity is uniquely flexible. Envision the possibilities of six modern flats, adding to the local housing market while benefiting from excellent nearby amenities. This location is particularly appealing, given Saltcoats' population of over 35,000 and its connectivity to Glasgow and Largs.
However, due diligence is advised, particularly regarding obtaining the necessary consents for residential projects. With its budget-friendly asking price of £90,000, this land not only signifies an excellent investment but a chance to shape the future of the local landscape. Don't miss out on this prime development opportunity—act quickly before it’s gone!
Land for sale in Manse Street, Saltcoats, North Ayrshire, KA21 — £50,000 • 1 bed • 1 bath • 1362 ft²
Office for sale in 32 Hamilton Street, Saltcoats, KA21 — £235,000 • 1 bed • 1 bath • 5382 ft²
Land for sale in Irvine Road, Fairlie, KA29 — £295,000 • 1 bed • 1 bath • 8019 ft²
Shop for sale in Hamilton Street, Saltcoats, North Ayrshire, KA21 — £90,000 • 4 bed • 1 bath
High street retail property for sale in 41 Dockhead Street, Saltcoats, KA21 — £85,000 • 1 bed • 1 bath • 1024 ft²
Commercial property for sale in Vacant Retail Unit, 31 Old Raise Rd, Saltcoats, North Ayrshire, KA21 5RB, KA21 — £50,000 • 1 bed • 1 bath • 388 ft²


























