**Standout Features:**
- Two double bedrooms
- Conservatory for extra living space
- Private, enclosed rear garden with a sunny aspect
- Allocated parking space
- Ideal for first-time buyers
- Council tax band B (affordable)
**Potential Downsides:**
- Above-average crime rate in the area
- Slow broadband speeds
**Summary:**
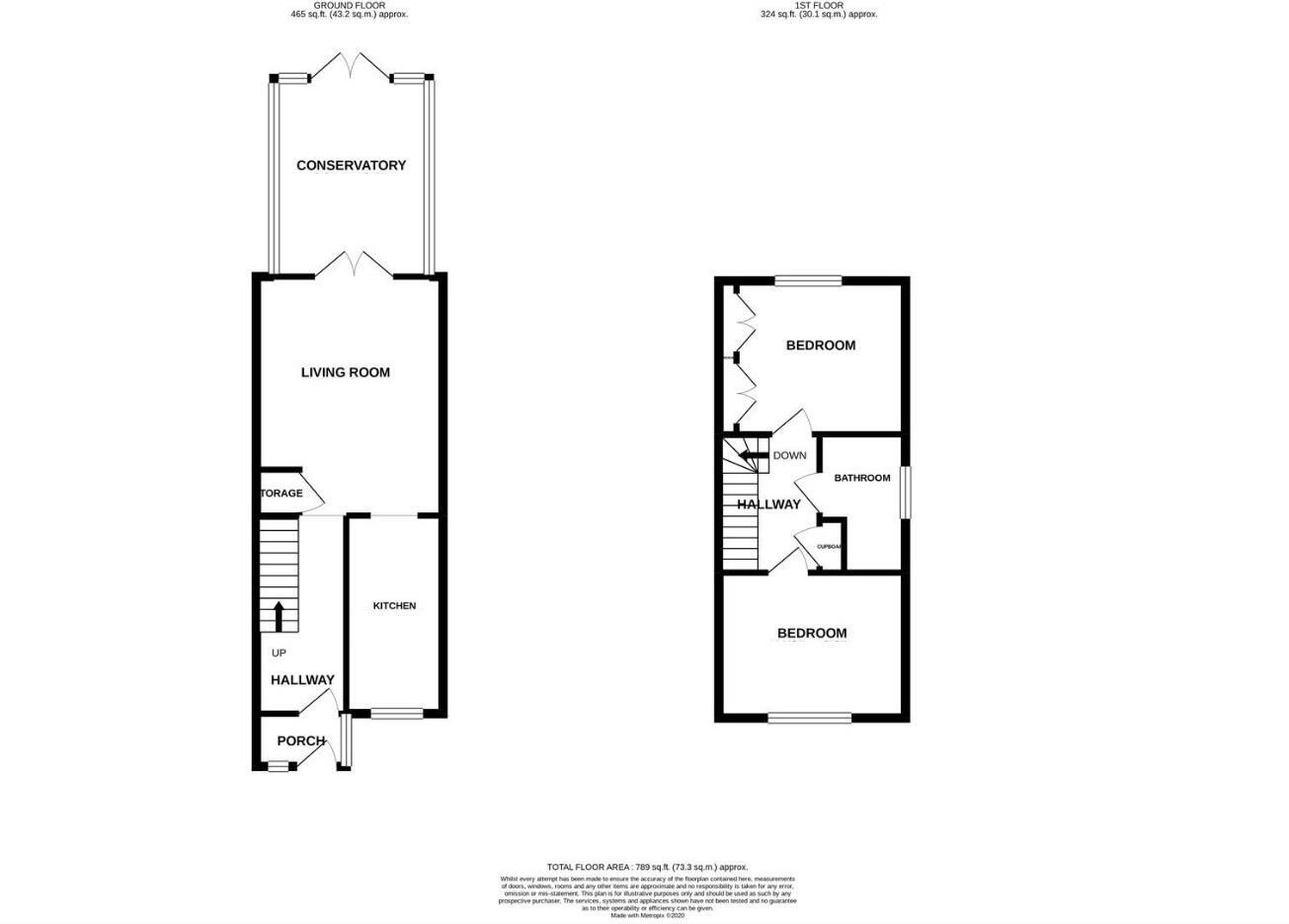
Discover this charming two-bedroom end-terraced house, perfectly suited for first-time buyers, set in a quiet and sought-after road in St Leonards. The home features a cozy lounge enhanced by a bright conservatory, offering a delightful space to relax and soak in the garden views. The kitchen, while compact, is functional and well-equipped, catering to everyday needs. Upstairs, both double bedrooms provide comfortable accommodations, ideal for small families or individuals seeking extra space.
The property boasts a private rear garden, predominantly laid with artificial lawn, creating a low-maintenance outdoor area complemented by mature shrubs for added privacy. Coupled with an allocated parking space, this home ensures practicality without sacrificing comfort. While located in an area with an above-average crime rate and slow broadband, the overall appeal and affordability make it a fantastic opportunity—don’t hesitate, as homes like this are in high demand!
2 bedroom semi-detached house for sale in The Kestrels, St. Leonards-On-Sea, TN38 — £259,950 • 2 bed • 1 bath • 625 ft²
2 bedroom terraced house for sale in Vantage Walk, St. Leonards-On-Sea, TN38 — £255,000 • 2 bed • 1 bath • 636 ft²
2 bedroom end of terrace house for sale in Inglewood Gardens, St. Leonards-On-Sea, TN38 — £250,000 • 2 bed • 1 bath • 828 ft²
2 bedroom end of terrace house for sale in St. Saviours Road, St. Leonards-On-Sea, TN38 — £270,000 • 2 bed • 1 bath • 740 ft²
2 bedroom terraced house for sale in Inglewood Gardens, St. Leonards-On-Sea, TN38 — £225,000 • 2 bed • 1 bath • 625 ft²
2 bedroom semi-detached house for sale in Wentworth Way, St. Leonards-On-Sea, TN38 — £260,000 • 2 bed • 1 bath • 582 ft²


































































































