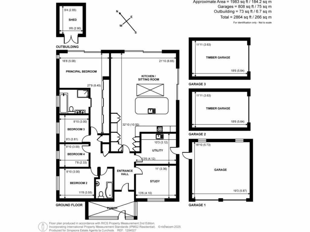
**Standout Features:**
- Spacious 4-bedroom, 2-bathroom detached bungalow
- Contemporary open-plan living with an abundance of natural light
- Large half-acre plot with beautifully maintained garden
- Double garage plus two additional timber garages for storage/parking
- Separate study and utility room ideal for modern family living
- Luxurious principal bedroom with en-suite bathroom and garden views
- Located in a tranquil rural setting, offering privacy and peace
**Summary:**
Discover this impressive contemporary bungalow set on a generous half-acre plot, offering stylish modern living and exceptional flexibility. The heart of the home features a bright open-plan living space enhanced by a striking skylight and a sleek kitchen with an island perfect for gatherings. The principal bedroom boasts luxurious en-suite facilities and breathtaking views of the private garden, while three additional bedrooms and a modern family bathroom cater to all family needs. Outside, the expansive garden provides ample room for outdoor dining and activities, flanked by mature trees that offer a serene backdrop.
This property is ideal for families seeking comfort in a peaceful, countryside setting, complemented by the convenience of a study for remote working. With high-quality finishes throughout and numerous garages for storage or project potential, it represents both a desirable home and an exciting opportunity. Don’t miss this chance to own a piece of tranquillity in a vibrant rural community—schedule a viewing today!
4 bedroom bungalow for sale in Maybourne Rise, Woking, Surrey, GU22 — £950,000 • 4 bed • 3 bath • 2387 ft²
2 bedroom detached house for sale in Malthouse Lane, Worplesdon, Guildford, Surrey, GU3 — £700,000 • 2 bed • 1 bath • 1079 ft²
3 bedroom bungalow for sale in Saunders Lane, Woking, Surrey, GU22 — £650,000 • 3 bed • 1 bath • 1124 ft²
3 bedroom bungalow for sale in Send Marsh Road, Ripley, Woking, Surrey, GU23 — £625,000 • 3 bed • 1 bath • 883 ft²
4 bedroom bungalow for sale in Weare Street, Ockley, Dorking, Surrey, RH5 — £1,200,000 • 4 bed • 3 bath • 2004 ft²
4 bedroom bungalow for sale in Kitsmead Lane, Longcross, KT16 — £1,250,000 • 4 bed • 3 bath • 1629 ft²














































































