Character-packed three-bedroom home with sunny private courtyards near the Quayside.
Grade II listed historic cottage c.1647
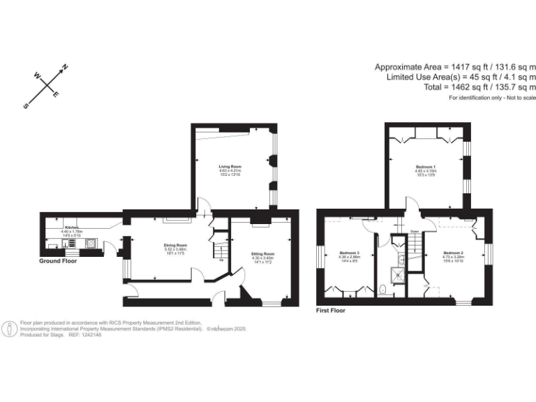
Serendipity Cottage is a rare Grade II listed townhouse tucked into the heart of historic Appledore, just a short walk from the Quayside. Built c.1647, the house keeps genuine period character: exposed beams, stone fireplaces and cob walls create a warm, authentic atmosphere across deceptively spacious rooms. Three reception rooms and three double bedrooms give flexible living for family life, home working or guest space.
A private south-facing courtyard at the rear and a sunny front courtyard deliver sheltered outdoor space for al fresco dining and container gardening. Practical features include mains gas central heating, double glazing and an EPC rating of C, plus ultrafast broadband — useful for modern family needs. The village offers strong community amenities, a good primary school and low local crime.
Buyers should be aware this is a Grade II listed cob-and-stone property; listed status will cause restrictions and potential complications for alterations, maintenance and permissions. The granite/cob walls are assumed uninsulated, so improving thermal performance or making structural changes will require specialist advice and listed-building consent. The home has one shower bathroom only, and some areas need updating rather than being fully modernised.
This freehold, chain-free cottage will suit purchasers seeking an authentic period home in a lively coastal village, who value character and location and are comfortable with the responsibilities of listed-property ownership. For those prepared to invest in sensitive upgrading, the house offers strong charm, generous internal space and genuine seaside appeal.
2 bedroom terraced house for sale in Market St, Appledore, Bideford, EX39 — £315,000 • 2 bed • 1 bath • 598 ft²
3 bedroom terraced house for sale in Bude Street, Appledore, Bideford, Devon, EX39 1PS, EX39 — £435,000 • 3 bed • 1 bath • 843 ft²
2 bedroom terraced house for sale in Market Street, Market Street, Appledore, Bideford, EX39 — £273,000 • 2 bed • 1 bath • 972 ft²
2 bedroom cottage for sale in Marine Parade, Appledore, Bideford, EX39 — £375,000 • 2 bed • 1 bath • 872 ft²
3 bedroom terraced house for sale in 47 Irsha Street, Appledore, EX39 — £500,000 • 3 bed • 2 bath • 1551 ft²
2 bedroom end of terrace house for sale in Off Irsha Street, Appledore, EX39 — £299,950 • 2 bed • 1 bath • 565 ft²






















































































































