Period character, garden and loft potential close to Tooting stations.
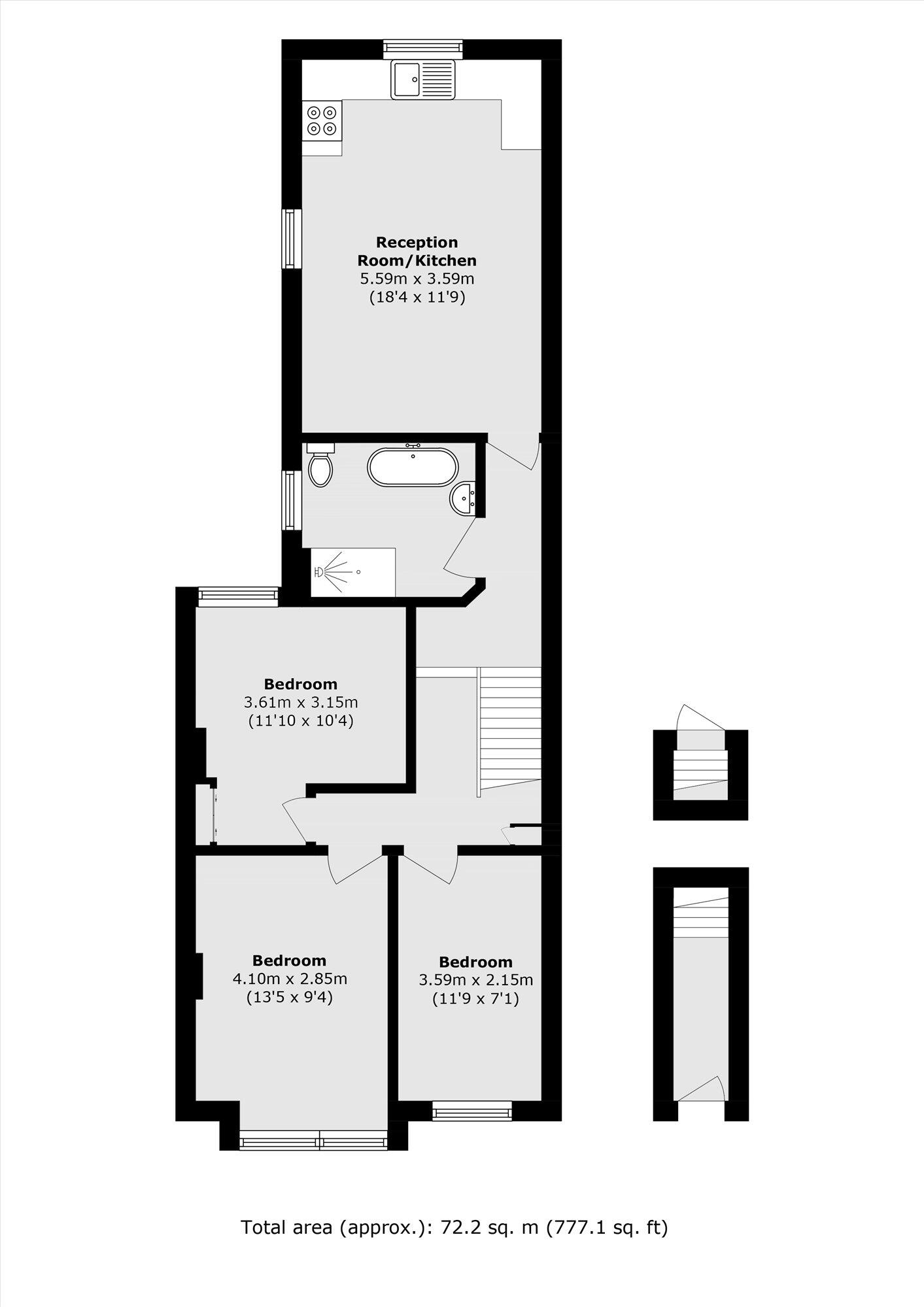
Three double bedrooms, generous proportions for the layout
A bright three-double-bedroom first-floor Victorian maisonette in the heart of Tooting, arranged across a long, practical 777 sq ft footprint. The open-plan living/kitchen to the front benefits from good natural light, while the rear kitchen leads to a private garden—useful outdoor space in an inner‑city setting. The property has been modernised in parts and retains period character, making it move‑in ready for a growing family.
This home offers clear scope to add value: planning permission was previously approved for a loft extension, so loft conversion (STPP) could create more space and improve long‑term value. The flat is offered with a 100‑year lease remaining and no onward chain, simplifying purchase and letting options. Transport links are strong with Tooting Overground and Tooting Broadway nearby, and local schools include several rated Good or Outstanding.
Buyers should note material facts plainly: the property is leasehold, currently has only one bathroom, and the EPC rating is D. The wider street reports above‑average crime for the area, so purchasers should factor security measures and insurance into running costs. The building’s solid brick walls likely lack cavity insulation, which may influence heating costs despite mains gas boiler and radiators.
Overall this home will suit a young family seeking space in a well‑connected neighbourhood or an investor targeting rental demand; it also presents a renovation/opportunity play for buyers who can add a loft and increase floor area and rental or resale value.
3 bedroom maisonette for sale in Mellison Road, Tooting, SW17 — £475,000 • 3 bed • 1 bath • 905 ft²
2 bedroom apartment for sale in Loubet Street, London, SW17 — £560,000 • 2 bed • 1 bath • 700 ft²
3 bedroom maisonette for sale in Sellincourt Road, Tooting, SW17 — £700,000 • 3 bed • 2 bath • 1124 ft²
3 bedroom maisonette for sale in Aldis Street, SW17 0RZ, SW17 — £500,000 • 3 bed • 1 bath • 757 ft²
3 bedroom terraced house for sale in Graveney Road, Tooting, SW17 — £775,000 • 3 bed • 1 bath • 902 ft²
3 bedroom maisonette for sale in Inglemere Road, Tooting, CR4 — £575,000 • 3 bed • 1 bath • 1000 ft²


































