Characterful family home with large garden and garage, sold chain free.
Detached dormer bungalow with period features and bay windows
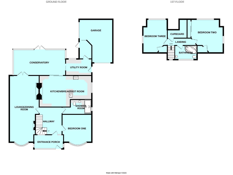
Set in a popular Plymstock position, this detached dormer bungalow delivers generous, traditional accommodation across two levels. A wide entrance hall leads to an open-plan lounge/dining room and a large conservatory that frames south‑west views towards Staddon Heights and Dean Cross cricket ground. The kitchen/breakfast room and two utility spaces sit beside an integral, L-shaped garage and plentiful off-road parking.
Practical for multi-generational living, the property offers a ground‑floor double bedroom with adjacent shower room, plus two sizeable double bedrooms and a bathroom on the first floor. Features such as bay windows, fireplaces and leaded stained glass add period character, while double glazing and mains gas central heating provide everyday comfort.
The plot is a strong selling point: brick‑paved frontage for multiple cars, gated side access and a south‑west facing rear garden laid mainly to patio and raised beds. No onward chain means a straightforward purchase route for buyers wanting to move quickly.
Buyer notes: the house dates from the 1930s–40s and cavity walls are assumed uninsulated, so thermal improvements could be needed. The double glazing install date is unknown and the property sits in Council Tax band E. Overall, this is a roomy, characterful family home with scope for sympathetic updating and energy-efficiency enhancement.
2 bedroom detached bungalow for sale in Plymstock, Plymouth, PL9 — £325,000 • 2 bed • 1 bath • 743 ft²
4 bedroom detached bungalow for sale in Plymstock, Plymouth, PL9 — £395,000 • 4 bed • 2 bath • 1495 ft²
4 bedroom detached bungalow for sale in Downhorne Park, Plymstock, Plymouth, PL9 — £500,000 • 4 bed • 2 bath • 1172 ft²
2 bedroom semi-detached bungalow for sale in Plymstock, Plymouth, PL9 — £260,000 • 2 bed • 1 bath • 840 ft²
3 bedroom semi-detached bungalow for sale in Plymouth Road, Plympton, Plymouth, PL7 — £300,000 • 3 bed • 2 bath • 1284 ft²
3 bedroom bungalow for sale in Shute Park Road, Plymouth, Devon, PL9 — £445,000 • 3 bed • 1 bath • 1584 ft²


































































































