**Standout Features:**
- Substantial stone-built farmhouse with classic charm
- Five spacious bedrooms, including a master with ensuite
- Three reception rooms and a generous orangery
- Extensive formal gardens and over 24 acres of agricultural land
- Charming rural location with excellent access to the train station
- Detached with off-street parking, and no chain
**Potential Concerns:**
- Slow broadband speeds
- Increased council tax expenses
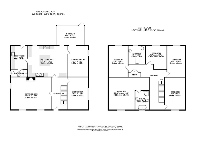
This idyllic stone farmhouse offers a perfect blend of traditional charm and modern living in a serene rural setting. Boasting five generous bedrooms, including a master suite with an ensuite, this home delivers comfort and privacy for families. The heart of the home is highlighted by a delightful kitchen diner featuring an oil-fired AGA, alongside three spacious reception rooms and a stylish orangery that invites natural light and garden views.
Surrounded by beautifully landscaped gardens and an impressive 24-acre plot offering agricultural potential, this property presents rare opportunities for those seeking a rural lifestyle. The large barn provides additional conversion potential or storage, making it ideal for agriculture enthusiasts or investors looking for a unique opportunity. With Chapel-en-le-Frith train station just a short walk away, this location beautifully balances tranquility with accessibility.
This charming farmhouse won't last long in today's market—seize the chance to own a piece of countryside paradise!
5 bedroom detached house for sale in Sticking Mires Farmhouse, Bridgemont, Whaley Bridge, High Peak, SK23 — £725,000 • 5 bed • 2 bath • 2120 ft²
4 bedroom detached house for sale in Chapel-En-Le-Frith, High Peak, SK23 — £999,950 • 4 bed • 2 bath • 2119 ft²
5 bedroom detached house for sale in Sticking Mires Farmhouse, Bridgemont, Whaley Bridge, High Peak, Derbyshire, SK23 — £725,000 • 5 bed • 2 bath • 2156 ft²
5 bedroom detached house for sale in Onecote Leek, Staffordshire, ST13 7RZ, ST13 — £1,000,000 • 5 bed • 4 bath • 3271 ft²
8 bedroom detached house for sale in Peak Forest, Buxton, Derbyshire, SK17 — £1,400,000 • 8 bed • 4 bath • 5332 ft²
4 bedroom house for sale in Lyme Handley, Whaley Bridge, High Peak, SK23 — £1,000,000 • 4 bed • 2 bath • 2088 ft²














































































































