NN8 2ER - Land for sale in Pindar Road, Wellingborough, NN8

View on Property Piper

Land for sale in Pindar Road, Wellingborough, NN8

Summary - 5, PINDAR ROAD, WELLINGBOROUGH NN8 2ER

1 bed 1 bath Land

**Standout Features:**
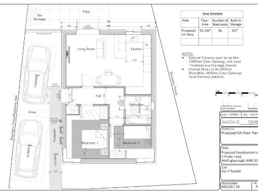
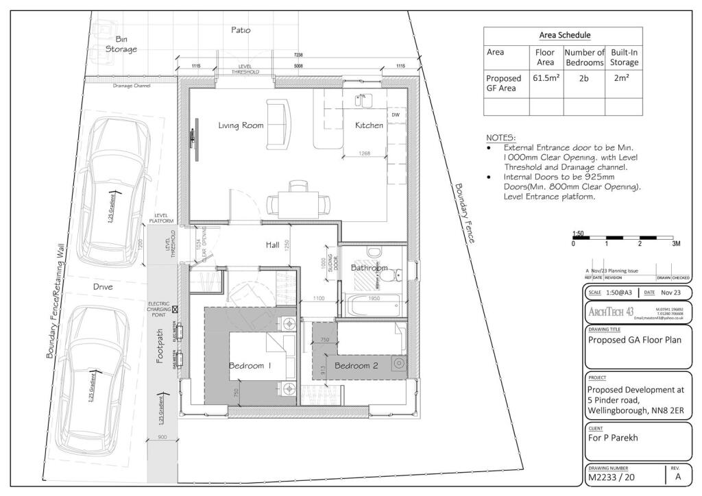
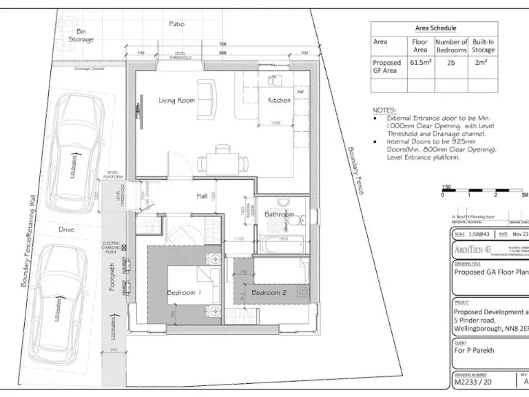
- Full planning permission granted for a contemporary two-bedroom detached bungalow (Application number: NW/23/00747/FUL).
- Generous plot size with room for a garden and off-street parking, including a garage.
- Excellent mobile signal and fast broadband speeds, ideal for remote work or family needs.

**Concerns:**
- Located in an area with above-average crime rates and high levels of deprivation.
- Property will require development to meet livable standards, being currently a vacant plot.

Unlock the potential of this prime piece of land in the sought-after Kingsway area! With full planning permission already secured, envision your new life in a stylish two-bedroom bungalow featuring a contemporary open-plan design, perfect for young families or as an investment opportunity. The generous garden space and private parking add to its appeal, providing comfort and privacy in a bustling suburban setting.

While the neighborhood has its challenges, including higher crime rates, the prospect of creating your ideal home remains compelling. This plot offers the flexibility for future renovations or extensions, allowing for customization that reflects your style. Take advantage of local amenities and schools with strong Ofsted ratings, making it a practical choice for growing families. With a competitive price of £87,500, seize this unique opportunity before it disappears!

Property Details

Brochure Descriptions

Image Descriptions

Textual Property Features

Detected Visual Features

Nearby Schools

Nearest Bars And Restaurants

,,,,}

Nearest General Shops

,,}

Nearest Grocery shops

,,}

Nearest Supermarkets

,,}

Nearest Religious buildings

,,}

Nearest Medical buildings

,,,}

Nearest Leisure Facilities

,,,,}

Nearest Tourist attractions

,,}

Nearest Train stations

,,,,}

Nearest Bus stations and stops

,,,,}

Nearest Hotels

,,}

Tags

Local Market Stats

AirBnB Data

Meta

High Res Images

Compatible Images

Low res Images

Thumbnails

Raw Images