Comfortable three-bed family home with generous parking and private garden near local schools.
- Three bedrooms with family bathroom upstairs
- Spacious kitchen-diner ideal for family meals and entertaining
- Driveway parking for up to three vehicles
- Landscaped rear garden with decking and gated side access
- Approx 915 sq ft internal space; rooms average in size
- Single bathroom only; may be limiting for larger families
- Double glazing present; install date unknown
- Freehold, low crime area, excellent broadband and mobile signal
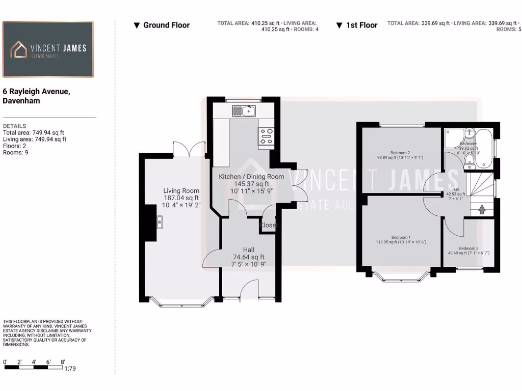
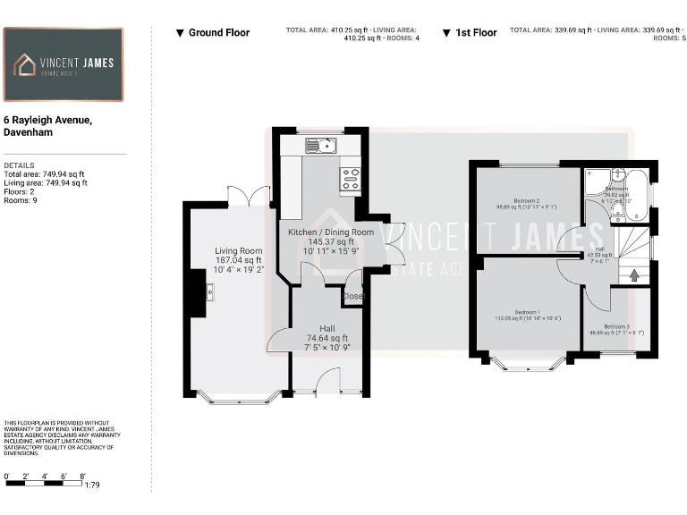
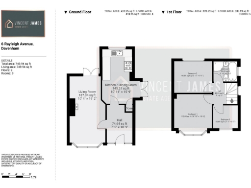
Set on a quiet street just a short walk from Davenham village, this three-bedroom semi offers a comfortable family layout across two floors. The house combines period bay-window character with practical modern upgrades: a generous kitchen-diner, cosy lounge with French doors to the garden, and a sizeable driveway that fits up to three cars. The landscaped rear garden and decking provide a private, low-maintenance outdoor space ideal for children and summer entertaining.
Internally the rooms flow well for everyday family life. The entrance hall, lounge and kitchen-diner create a connected ground floor; upstairs are three bedrooms and the family bathroom. Utilities are mains gas with a boiler and radiators, double glazing is present, and broadband and mobile signals are excellent, supporting home working and streaming without issue.
A few practical points to note: the overall internal area is modest at about 915 sq ft, so room sizes are average rather than generous. There is a single family bathroom, and the exact age of the double glazing is not recorded. The property is freehold, in a very low-crime, affluent area with good local schools and public transport links — making it well suited to growing families seeking village living close to Northwich.
3 bedroom semi-detached house for sale in Immaculately presented semi-detached property on a prized cul-de-sac in the heart of the village, CW9 — £275,000 • 3 bed • 1 bath • 967 ft²
3 bedroom semi-detached house for sale in Superb semi-detached property with south facing rear garden, CW9 — £340,000 • 3 bed • 2 bath • 772 ft²
2 bedroom semi-detached house for sale in Mount Pleasant Road, Davenham, Northwich, CW9 — £230,000 • 2 bed • 1 bath • 606 ft²
4 bedroom detached house for sale in Extended & Modernised Home in Davenham w/ Four Bedrooms, CW9 — £400,000 • 4 bed • 2 bath • 1293 ft²
3 bedroom semi-detached house for sale in Beautifully extended three bedroom property on generous corner plot, CW9 — £360,000 • 3 bed • 1 bath • 1068 ft²
3 bedroom cottage for sale in Period cottage with an enviable south facing rear garden, CW9 — £400,000 • 3 bed • 1 bath • 1094 ft²










































































































