Spacious three-bed home with huge garden and extensive parking.
0.37 acre plot with substantial lawned west-facing garden
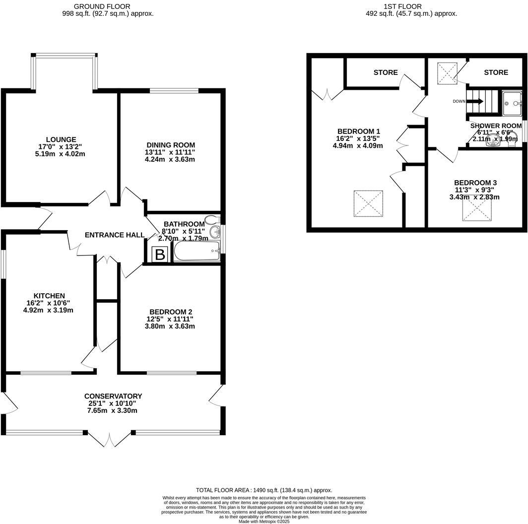
Approximately 1,490 sq ft living space; spacious reception rooms
Dual-aspect breakfast kitchen and full-width conservatory
Detached single garage plus parking for multiple cars/caravan
Three bedrooms (two on first floor) and two bathrooms
EPC rating E — scope for energy/efficiency improvements
Timber-framed glazing (secondary glazing noted) and mid-century build
Suitable for updating or potential extension (subject to consents)
Set back from the road on an unusually large 0.37 acre plot, this detached bungalow offers spacious, flexible accommodation across about 1,490 sq ft. The ground floor provides two generous reception rooms, a dual-aspect breakfast kitchen and a full-width conservatory that opens onto a substantial lawned rear garden — ideal for family life and entertaining.
Three bedrooms are arranged over ground and first floors, served by two bathrooms. Built in the mid-20th century, the property benefits from gas central heating and mainly timber-framed double glazing; the EPC rating is E. A detached single garage and extensive off-street parking (including caravan standing) add practical convenience for multiple vehicles.
The large, west-facing rear garden with mature trees, planted beds and outbuildings offers strong scope for landscaping, outbuildings or extension (subject to consents). The layout and plot particularly suit families seeking outdoor space and potential to update or extend. Note: the property shows typical mid-century construction and will suit buyers prepared to carry out cosmetic updating and energy improvements.
2 bedroom detached bungalow for sale in Westhill Lane, Grassmoor, Chesterfield, S42 — £315,000 • 2 bed • 1 bath • 840 ft²
3 bedroom detached bungalow for sale in Hady Lane, Hady, Chesterfield, S41 — £315,000 • 3 bed • 2 bath • 1550 ft²
4 bedroom detached bungalow for sale in Brimington Road, Chesterfield, S41 — £375,000 • 4 bed • 1 bath • 1922 ft²
3 bedroom detached bungalow for sale in Alfreton Road, South Normanton, Alfreton, Derbyshire, DE55 2AS, DE55 — £325,000 • 3 bed • 1 bath • 941 ft²
3 bedroom detached bungalow for sale in Brandene Close, Calow, Chesterfield, S44 — £425,000 • 3 bed • 2 bath • 2277 ft²
3 bedroom detached bungalow for sale in Churchland Avenue, Holmewood, Chesterfield, S42 — £210,000 • 3 bed • 1 bath • 974 ft²






















































































