Compact period home near Totteridge & Whetstone tube station.
Own entrance to first-floor maisonette
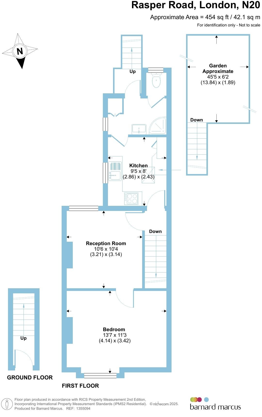
This bright first-floor maisonette combines Victorian character with practical commuter convenience. The property benefits from its own entrance, period features including a fireplace and high ceilings, double-glazed windows and gas central heating, all within easy walking distance (0.4 miles) of Totteridge & Whetstone tube station.
At about 454 sq ft the layout suits a single buyer or couple seeking a compact, well-presented home or a buy-to-let opportunity. The shared south-facing rear garden provides a pleasant private outdoor space. The long lease (153 years) and low council tax keep running costs manageable, and there is no service charge to budget for; ground rent is modest at £100 per year.
Buyers should note the property’s small overall footprint and that walls are solid brick with no known insulation (typical of the era), which may prompt retrofit insulation work. The area records above-average crime, and the maisonette occupies a busy crescent location, factors worth checking during a viewing. Occasional modernization or cosmetic updates may be desired to suit contemporary tastes.
Overall this maisonette will appeal to first-time buyers and investors who prioritise location, period charm and straightforward running costs, while being comfortable with a compact home and some potential improvement work.
2 bedroom maisonette for sale in High Road, Whetstone, N20 — £450,000 • 2 bed • 1 bath • 809 ft²
1 bedroom apartment for sale in Oakleigh Park North, London, N20 — £275,000 • 1 bed • 1 bath • 470 ft²
1 bedroom flat for sale in High Road, Wheststone, N20 — £345,000 • 1 bed • 1 bath • 495 ft²
3 bedroom flat for sale in Maison House, Whetstone, N20 — £650,000 • 3 bed • 1 bath • 1114 ft²
2 bedroom flat for sale in Greenside Close, London, N20 — £350,000 • 2 bed • 1 bath • 531 ft²
2 bedroom flat for sale in High Road, London, N20 — £375,000 • 2 bed • 1 bath • 637 ft²


















































