Large Victorian townhouse with parking and garden — ideal for first-time buyers or investors.
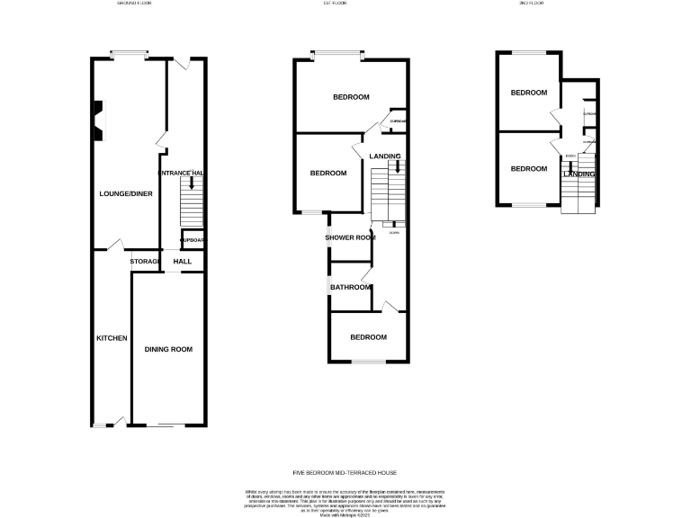
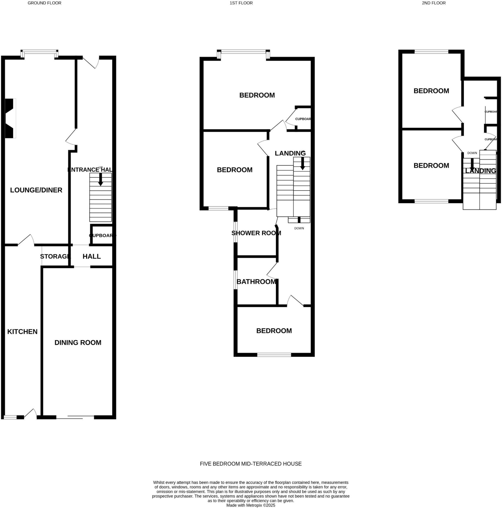
Five bedrooms across three floors, generous internal floor area (2,046 sq ft)
This three-storey, five-bedroom mid-terrace in Clacton-on-Sea offers spacious, period-style accommodation over 2,046 sq ft, recently redecorated and ready for immediate occupation. The layout includes a bay-front reception, multiple living areas and a practical galley kitchen, with gas central heating and double glazing. Off-street parking for one to two cars and an enclosed rear garden are useful urban conveniences.
The property sits on a parade of retail units, with local shops, cafés and the train station within easy reach — practical for commuting or short-let guests. The interior presents a neutral, economical finish and appears suitable for a first-time buyer seeking space or an investor targeting HMO or multi-let conversion (subject to planning and checks).
Be aware of notable local and property considerations: the area records high crime levels and is very deprived, which may affect resale demand and lettings. The building is a solid-brick, early-20th-century terrace with assumed lack of cavity insulation; further insulation work and potential upgrades may be needed to improve energy efficiency. Tenure is unknown and should be confirmed prior to exchange. Overall, the house offers good scale and practical features but will suit buyers comfortable with a mixed commercial/residential street and who accept some refurbishment or investment-to-let planning work may be required.
5 bedroom town house for sale in Beaconsfield Road, Clacton-On-Sea, CO15 — £300,000 • 5 bed • 2 bath • 948 ft²
6 bedroom semi-detached house for sale in Hayes Road, Clacton-on-Sea, CO15 — £300,000 • 6 bed • 1 bath • 1587 ft²
10 bedroom semi-detached house for sale in Edith Road, Clacton-on-Sea, CO15 — £499,000 • 10 bed • 4 bath • 1015 ft²
3 bedroom terraced house for sale in St Osyth Road, Clacton-On-Sea, CO15 — £200,000 • 3 bed • 1 bath • 942 ft²
8 bedroom semi-detached house for sale in Penfold Road, Clacton-on-Sea, Essex, CO15 — £355,000 • 8 bed • 3 bath • 1755 ft²
5 bedroom semi-detached house for sale in Hayes Road, Clacton-on-Sea, CO15 1, CO15 — £375,000 • 5 bed • 2 bath • 1108 ft²






















































