Victorian four-bedroom home with balcony views and extension potential.
Panoramic estuary views from top two floors and balcony
Set on the sought-after Esplanade in Fowey, this Victorian four-bedroom town house delivers dramatic estuary views from the top two floors and a sunny balcony overlooking the harbour. The property is arranged over four floors with generous room proportions and original period features, offering an attractive family home or holiday base in a prime waterside location.
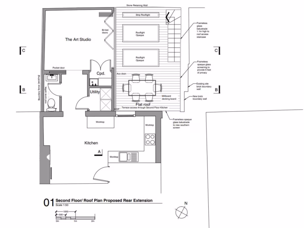
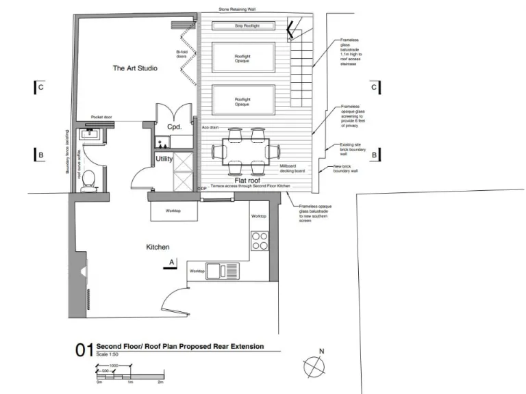
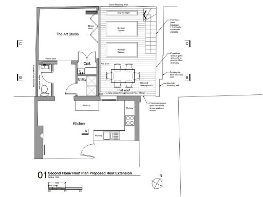
Practical advantages include vacant possession, freehold tenure and planning permission for a two-storey rear extension with roof terrace (PA21/08298) — a clear opportunity to add space and increase value. The rear courtyard and small front garden provide low-maintenance outdoor space while the property sits within easy, level walking distance of Readymoney Beach and town amenities.
Buyers should note material considerations: the house has solid brick walls assumed to lack insulation, double glazing installed pre-2002, an EPC rating of D and relatively slow broadband speeds. The layout across four floors may not suit limited mobility and the plot is small, so outside space is modest. Council Tax sits in band E. These are straightforward issues to address but important when budgeting for any improvements.
Overall, this is a characterful, well-located period property with exceptional estuary views and genuine scope to extend and modernise. It will appeal to buyers wanting a scenic, central Fowey residence with potential to personalise and enhance living space.
4 bedroom town house for sale in North Street, Fowey, PL23 — £575,000 • 4 bed • 1 bath • 1019 ft²
4 bedroom apartment for sale in Daglands Road, Fowey, PL23 — £695,000 • 4 bed • 2 bath • 1421 ft²
3 bedroom terraced house for sale in Daglands Road, Fowey, PL23 — £550,000 • 3 bed • 2 bath • 1174 ft²
4 bedroom house for sale in Station Road, Fowey, PL23 — £780,000 • 4 bed • 2 bath • 1368 ft²
3 bedroom terraced house for sale in Passage Street, Fowey, PL23 — £600,000 • 3 bed • 2 bath • 1320 ft²
3 bedroom terraced house for sale in Passage Street, Fowey, Cornwall, PL23 — £680,000 • 3 bed • 2 bath • 1096 ft²


















































































































