New-build three-bed bungalow with huge garden and buyer-selected finishes.
- Brand-new detached chalet bungalow, three bedrooms, two bathrooms
- Large plot with private garden — significant outside space
- Garage with electric door, driveway parking for multiple cars
- Open-plan kitchen/living with French doors to garden
- Internal finishes not completed; buyer to choose fixtures and flooring
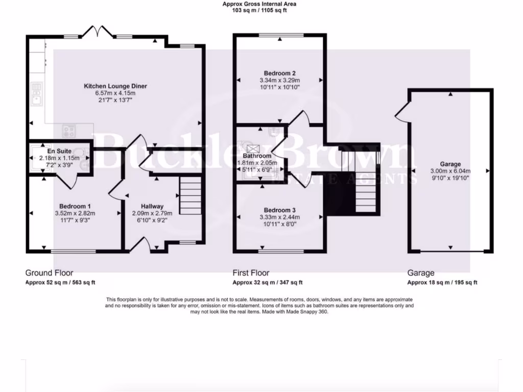
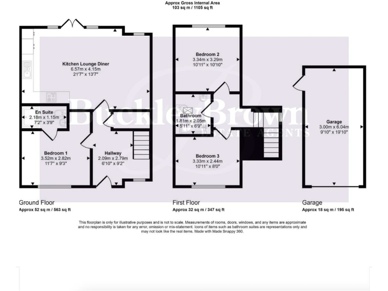
- Freehold tenure; 1,050 sq ft overall (approx.)
- Average mobile signal and broadband speeds in the area
- Convenient for A1/M1 links and local 'Good' schools
A newly renovated three-bedroom detached chalet bungalow in Edwinstowe, set on a very large plot with an attached garage and driveway. The home offers bright open-plan living to the rear with large windows and French doors that lead to the garden — an attractive layout for family life and entertaining.
The property is sold freehold as a new build with internal finishes still to be chosen. Buyers can specify kitchen units, flooring and shower panels, so you can personalise fixtures and surfaces to your taste rather than retrofit them later. Practical features include an ensuite to the ground-floor main bedroom, a well-appointed family bathroom on the upper level, and internal garage electrics and lighting.
Notable practical considerations: the interior is not yet fully finished, so final fit-out choices and any associated delays or additional costs are a material factor. Broadband and mobile signals in the area are average, and the setting is a small-town / town-fringe location rather than a major urban centre. The property’s large plot offers scope for landscaping, extension (subject to consents), or garden design but will require ongoing maintenance.
Location benefits include easy commuter access to the A1 and M1, good local schools rated 'Good', low local crime levels and a range of nearby village amenities. For buyers seeking a modern, flexible family home they can personalise from the outset, this detached bungalow presents clear potential when weighed against the work of choosing and completing the internal fit-out.
3 bedroom detached bungalow for sale in Old House Garden, High Street, Edwinsotwe, NG21 — £289,000 • 3 bed • 2 bath • 1105 ft²
4 bedroom detached house for sale in Old House Garden, High Street, Edwinstowe, NG21 — £475,000 • 4 bed • 2 bath • 1341 ft²
3 bedroom detached bungalow for sale in High Street, Edwinstowe, Mansfield, NG21 — £299,000 • 3 bed • 2 bath • 1105 ft²
3 bedroom detached bungalow for sale in Mansfield Road, Edwinstowe, NG21 — £320,000 • 3 bed • 2 bath • 1281 ft²
3 bedroom detached house for sale in Old House Garden, High Street, Edwinstowe, NG21 — £335,000 • 3 bed • 2 bath • 1173 ft²
3 bedroom town house for sale in Trinity Road, Edwinstowe, Mansfield, NG21 — £200,000 • 3 bed • 2 bath • 1436 ft²










































