Well-positioned mixed-use building with planning for an extra dwelling.
Freehold mixed-use terrace: shop plus multiple residential units
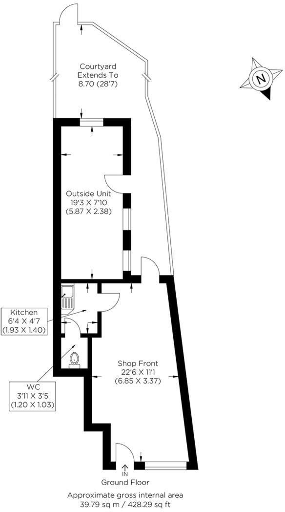
A freehold mixed-use terrace in Surrey Quays offering ground-floor retail plus residential upper floors. Currently configured as a shop, a self-contained one-bedroom flat and three en-suite HMO rooms, the building is fully let and has historically produced above £60,000 pa. Planning permission is already granted for a two-storey rear extension to create an additional dwelling, improving rental scope.
The property suits investors or small developers targeting regeneration areas. It sits close to major transport links and the Canada Water Masterplan, positioned to benefit from rising local demand. The building is traditional London stock brick with sash-style windows and roof dormers; double glazing was installed post-2002 and the heating is mains-gas boiler and radiators. EPC rating C and Council Tax Band D are recorded.
Buyers should note material constraints: the plot and private outdoor space are small, internal rooms are compact, and the area scores as deprived with above-average crime rates. The frontage and rear show aged brickwork and will likely need ongoing maintenance; further refurbishment will be required to convert or reconfigure spaces after extension works.
With the approved extension and appropriate refurbishment, the property has projected gross rental potential of around £85,000 pa. This reflects uplift from adding a new dwelling and reconfiguring upper floors — a clear value driver for investors prepared to manage tenant transitions and carry refurbishment costs.
Mixed use property for sale in 7 Plough Way, London, SE16 — £575,000 • 1 bed • 1 bath • 1369 ft²
Mixed use property for sale in 7 Plough Way, Surrey Quays, London, SE16 — £650,000 • 1 bed • 1 bath • 923 ft²
Commercial property for sale in 7 Plough Way, Surrey Quays, London SE16 2LS, SE16 — £575,000 • 1 bed • 1 bath • 436 ft²
Guest house for sale in Lower Road, London, SE16 — £3,000,000 • 1 bed • 1 bath
3 bedroom mixed use property for sale in Tower Bridge Road, London, SE1 — £900,000 • 3 bed • 1 bath • 689 ft²
4 bedroom terraced house for sale in Old Kent Road, London, SE15 — £800,000 • 4 bed • 2 bath • 639 ft²










































































