Spacious period living with large garden and development potential.
Victorian detached house with high ceilings and bay windows
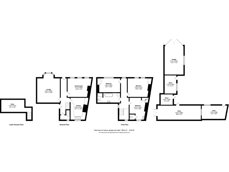
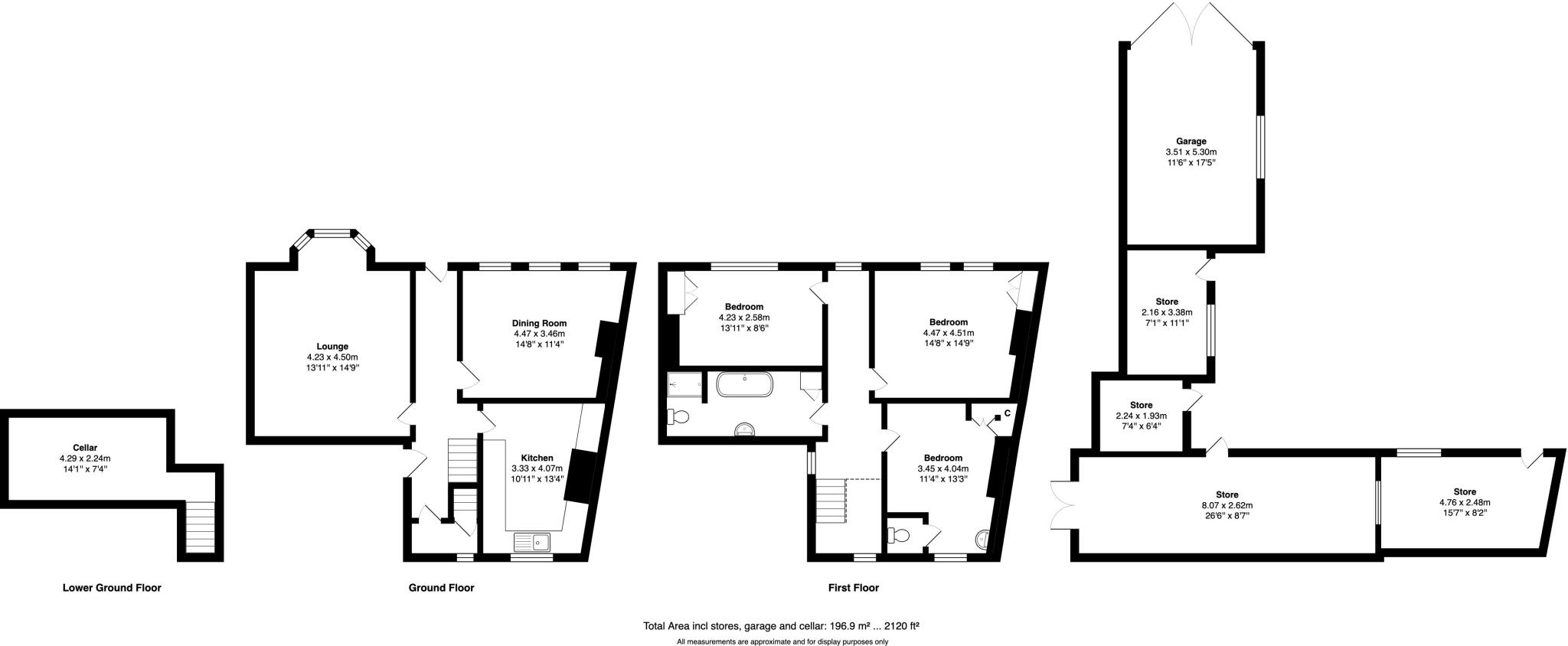
A handsome Victorian detached house set on a large plot in Queensbury, offering spacious family living and strong period character. High ceilings, bay windows, original fireplaces and substantial reception rooms create an immediate sense of history and generous scale. The mature garden and stone-built outhouses extend living potential and outdoor privacy.
Practical features include three good-sized bedrooms, two reception rooms, mains gas central heating and double glazing (installation date unknown). A garage provides covered parking and extra storage. There was formerly planning approval for conversion of the detached outbuildings to a bungalow, which indicates development potential but should be verified with current planning records.
Buyers should note this is an older solid-stone property (built 1900–1929) with walls of sandstone/limestone and assumed no cavity insulation; energy upgrades may be needed. Council tax is above average. Overall, the house suits families seeking period space and a large garden, or buyers wanting a renovation/development project with scope to add value.
4 bedroom detached house for sale in Brunswick Street, Queensbury, Bradford, BD13 — £330,000 • 4 bed • 1 bath • 1787 ft²
4 bedroom detached house for sale in Brunswick Street, Queensbury, Bradford, BD13 — £330,000 • 4 bed • 1 bath • 1870 ft²
3 bedroom terraced house for sale in Southfield Road, Little Horton, Bradford, BD5 — £220,000 • 3 bed • 1 bath • 1378 ft²
3 bedroom terraced house for sale in Greenland, Station Road, Queensbury, BD13 — £219,950 • 3 bed • 1 bath • 942 ft²
4 bedroom terraced house for sale in Highfield Terrace, Queensbury, Bradford, West Yorkshire, BD13 — £220,000 • 4 bed • 2 bath • 1256 ft²
4 bedroom detached house for sale in Valley Fold, Queensbury, Bradford, BD13 2LF, BD13 — £375,000 • 4 bed • 2 bath • 1550 ft²


























































































































