High-spec three-bedroom with extensive wellness and social facilities.
Conran & Partners interior design and panoramic London views
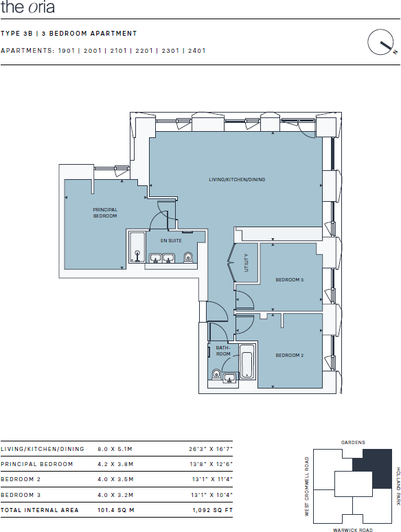
This three-bedroom apartment sits in The Oria at 100 Kensington, the tallest residential tower in the Royal Borough. Interiors by Conran & Partners, floor-to-ceiling city views and a tranquil podium garden deliver a high-spec, contemporary living environment suited to families or professionals wanting space and amenities in central London.
Residents benefit from extended on-site facilities: 4,000 sq ft gym, 20m pool, private cinema, multi-use events room, 12-hour concierge and landscaped communal gardens. Excellent mobile signal and fast broadband make the apartment practical for working from home; Heathrow is roughly a 30-minute drive and key Tube stations are within easy walking distance.
Buyers should note material costs: a service charge of about £7,092 pa (circa £6.50/sq ft) is above average, and the immediate area records higher crime levels and measures of deprivation despite the building’s internal security and concierge. The property is freehold/new build with a long lease term (255 years) and offers potential long-term capital appreciation given its location and specification.
The apartment is an average-sized, L-shaped three-bedroom with two bathrooms — a good balance of living space and city convenience. This is best suited to buyers prioritising high-end shared amenities and central Kensington living, while accepting higher running costs and local area challenges.
3 bedroom apartment for sale in 100 Kensington, Kensington, W14 — £2,230,000 • 3 bed • 2 bath • 1183 ft²
2 bedroom apartment for sale in 100 Kensington, Kensington, W14 — £1,190,000 • 2 bed • 2 bath • 721 ft²
1 bedroom apartment for sale in 100 Kensington, Kensington, W14 — £895,000 • 1 bed • 1 bath • 547 ft²
3 bedroom apartment for sale in 100 Kensington, 100 West Cromwell Road, London, W14 — £1,999,950 • 3 bed • 2 bath • 1092 ft²
3 bedroom flat for sale in 100 West Cromwell Road, 100 Kensington, W14 — £1,999,950 • 3 bed • 3 bath • 1092 ft²
3 bedroom penthouse for sale in 100 Kensington, 100 West Cromwell Road, London, W14 — £2,230,000 • 3 bed • 2 bath • 1176 ft²














































































