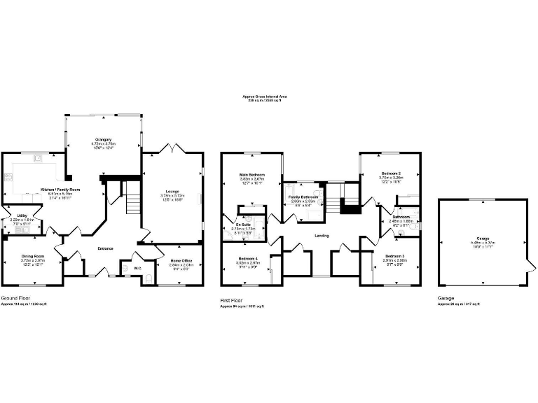
Spacious rural five-bedroom with large plot and countryside outlook for growing families.
- Show‑home styled five-bedroom detached house with orangery views
- Ground-floor guest bedroom / home office option
- Fitted kitchen with Bosch, Zanussi and Neff appliances
- Double detached garage with EV charging and upper storage
- Large rear plot backing onto farmland, private cul‑de‑sac
- Additional rear land available to purchase subject to agreement
- Garage conversion to annex possible but requires planning permissions
- Verify services, boundaries and measurements with solicitor/surveyor
Set at the end of a private cul-de-sac and backing onto farmland, this show‑home styled five-bedroom detached house offers flexible family accommodation and far-reaching countryside views. The ground floor includes a potential guest bedroom/home office, five reception rooms, a fitted kitchen with named appliances and a bright orangery opening onto the rear garden.
The plot is generous with a double detached garage (internal EV charging point and upper storage) and wide driveway providing plentiful parking. There is scope to purchase additional rear land subject to separate agreement, and the garage may offer annex conversion potential subject to planning and building regulations.
Practical features include underfloor heating to many ground-floor spaces, three bathrooms (master en suite and Jack & Jill), a utility room and plenty of built-in storage. The village setting places primary schooling and local amenities close by, with Newport and excellent secondary schools within easy reach — appealing for growing families wanting a rural lifestyle.
Buyers should note the material considerations: any purchase of extra land and any garage-to-annex conversion will require relevant permissions and agreements. Services, boundaries and measurements should be confirmed with solicitors and a survey is recommended to check condition and fittings before purchase.
5 bedroom detached house for sale in Tibberton, Newport, Shropshire, TF10 — £615,000 • 5 bed • 3 bath • 2750 ft²
3 bedroom link detached house for sale in Great Bolas, Telford, Shropshire, TF6 6PQ., TF6 — £340,000 • 3 bed • 2 bath • 1363 ft²
5 bedroom detached house for sale in Tibberton, Newport, TF10 — £895,000 • 5 bed • 4 bath • 3316 ft²
5 bedroom detached house for sale in Carmencita, Tibberton, Newport, TF10 — £1,100,000 • 5 bed • 4 bath • 3012 ft²
3 bedroom detached house for sale in 2 Old Tennis Courts, Tibberton, TF10 — £310,000 • 3 bed • 1 bath • 1125 ft²
5 bedroom detached house for sale in The Common, Edgmond, TF10 — £850,000 • 5 bed • 3 bath • 2433 ft²










































































































































































































