Move-in-ready family home with garage and low-maintenance outdoor space.
- NO UPWARD CHAIN; freehold tenure
- Four bedrooms, main with en-suite and built-in wardrobes
- Wide kitchen-diner with breakfast bar and separate utility
- Two reception rooms plus ground-floor WC
- Driveway and powered garage for parking and storage
- Southerly, low-maintenance rear garden, patio and lawn
- Compact overall size (approx 948 sq ft) and small plot
- Council tax moderate; good local schools and low crime
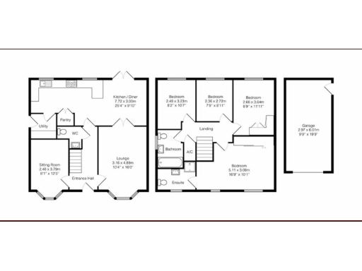
A spacious-feeling four-bedroom home in Hallam Fields, offered chain-free and ready to occupy. The ground floor balances a generous lounge with a separate sitting room, while a wide kitchen-diner with breakfast bar and a utility room give practical family space. French doors lead onto a southerly, low-maintenance rear garden designed for easy outdoor living.
Upstairs houses four well-proportioned bedrooms; the main bedroom includes built-in wardrobes and an en-suite. There is also a modern family bathroom. Off-street parking is provided by a driveway and a powered garage, useful for storage, hobbies or secure parking.
Notable positives include freehold tenure, fast broadband, low local crime and good nearby primary and secondary schools. Important practical points: the overall internal floor area (approx. 948 sq ft) and plot are compact, so families seeking very large rooms or extensive gardens may find space limited. Council tax is moderate.
This home suits families who want a move-in-ready property in a well-served suburban development, with easy maintenance and flexible living spaces. Internal viewing is recommended to appreciate the layout and proportions in person.
3 bedroom detached house for sale in Lapwing Drive, Birstall, Leicester, Leicestershire, LE4 — £375,000 • 3 bed • 2 bath • 1325 ft²
4 bedroom semi-detached house for sale in Long Swath Way, Birstall, Leicester, LE4 — £349,950 • 4 bed • 2 bath • 1365 ft²
4 bedroom semi-detached house for sale in Queensgate Drive, Birstall, Leicester, Leicestershire, LE4 — £395,000 • 4 bed • 2 bath • 1347 ft²
3 bedroom detached house for sale in Deacon Road, Leicester, LE4 — £330,000 • 3 bed • 2 bath • 593 ft²
3 bedroom semi-detached house for sale in Birstall Meadow Road, Birstall, Leicester, LE4 3NF, LE4 — £325,000 • 3 bed • 2 bath • 955 ft²
4 bedroom detached house for sale in Curzon Avenue, Birstall, Leicester, Leicestershire, LE4 — £525,000 • 4 bed • 3 bath • 1551 ft²






























































































