Well-maintained three-bed home with parking and sunny garden, ideal for families or first buyers.
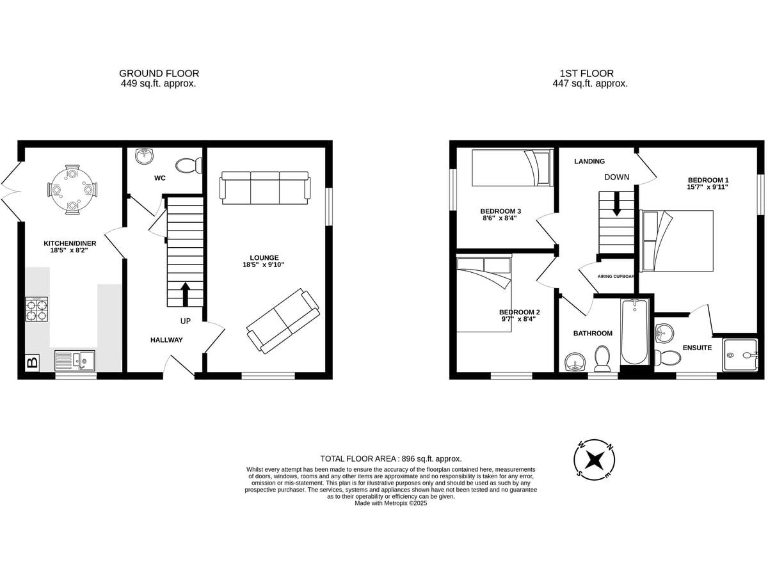
- Three bedrooms, master bedroom with ensuite
- Kitchen/diner with patio doors to sunny landscaped garden
- Two allocated off-street parking spaces
- Freehold, approximately 896 sq ft, manageable layout
- Fast broadband and no flood risk
- Small plot and low-maintenance garden
- Area: above-average crime; very deprived locality
- Council Tax Band D (moderate)
This well-presented three-bedroom semi-detached home sits in the popular Dyffryn Y Coed development, offering a practical layout for growing families or first-time buyers. The ground floor has a contemporary kitchen/diner with patio doors to a sunny, low-maintenance landscaped garden, plus a separate lounge and a convenient downstairs WC.
Upstairs you will find a master bedroom with an ensuite and two further bedrooms served by a modern family bathroom. The house is freehold, thoughtfully maintained and ready to move into, with useful built-in storage and a compact, manageable footprint (approximately 896 sq ft).
Practical advantages include two allocated off-street parking spaces, fast broadband availability and no flooding risk. Important local considerations: the area records above-average crime levels and is classified as very deprived, which may affect insurance and long-term resale expectations. The plot is small and outside space is designed for low maintenance rather than extensive gardening.
Overall this property suits buyers seeking a tidy, modern family home or first purchase with good transport links to Cardiff and nearby amenities. It offers immediate comfort and sensible running costs, though buyers should weigh location-related issues when deciding to view.
3 bedroom end of terrace house for sale in Dyffryn Y Coed, Church Village, Pontypridd, CF38 1PQ, CF38 — £249,950 • 3 bed • 2 bath • 753 ft²
3 bedroom semi-detached house for sale in Brynteg Green, Beddau, CF38 2PT, CF38 — £295,000 • 3 bed • 1 bath • 682 ft²
3 bedroom semi-detached house for sale in Heol Tyddyn, Caerphilly, CF83 — £275,000 • 3 bed • 2 bath • 797 ft²
3 bedroom detached house for sale in Lon Y Cadno, Church Village, Pontypridd, CF38 — £295,000 • 3 bed • 2 bath • 1049 ft²
3 bedroom detached house for sale in Brynteg Green, Beddau, Pontypridd, CF38 — £275,000 • 3 bed • 2 bath • 806 ft²
3 bedroom semi-detached house for sale in Ynys Bery Close, Caerphilly, CF83 — £285,000 • 3 bed • 1 bath • 721 ft²






















































































































